EasyManua.ls Logo

Astralpool 78543 - 3 Installation and Connection; Swimming Pool Heat Pumps Location; How Close to Your Pool

Astralpool 78543
35 pages
Print Icon
To Next Page IconTo Next Page
To Next Page IconTo Next Page
To Previous Page IconTo Previous Page
To Previous Page IconTo Previous Page
Loading...
3.INSTALLATION AND CONNECTION
9
3.1
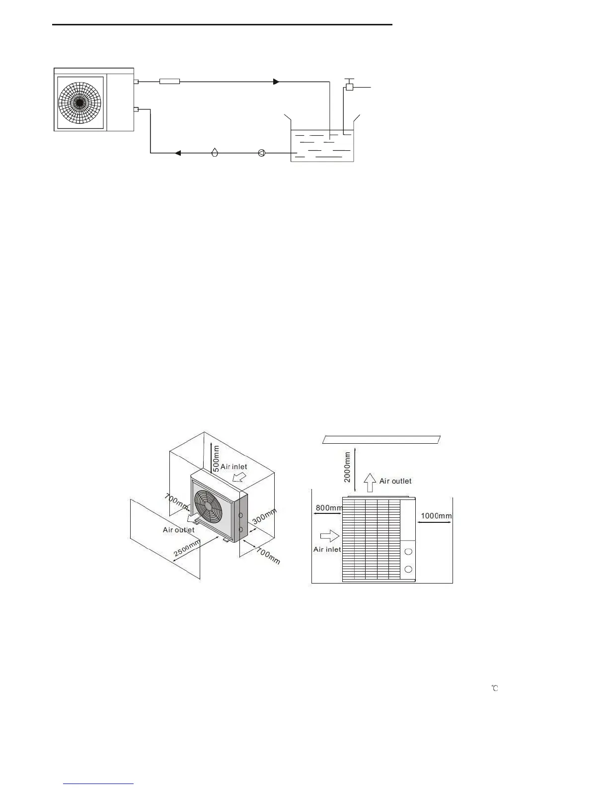
Installation illustration
The factory only provides the main unit and the water unit; the other items in the illustration are necessary spare parts for the water system,
that are provided by users or the installer.
Attention:
Please follow these steps when using for the first time 1.Open valve and charge water.
2.Make sure that the pump and the water-in pipe have been filled with water. 3.Close the valve and start the unit.
ATTN: It is necessary that the water-in pipe is higher than the pool surface.
3.2
Swimming Pool Heat Pumps Location
The unit will perform well in any outdoor location provided that the following three factors are presented:
1. Fresh Air - 2. Electricity - 3. Pool filter piping
The unit may be installed virtually anywhere outdoors. For indoor pools please consult the supplier. Unlike a gas
heater, it has no draft or pilot light problem in a windy area.
DO NOT place the unit in an enclosed area with a limited air volume, where the units discharge air will be re-
circulated.
DO NOT place the unit to shrubs which can block air inlet. These locations deny the unit of a continuous source of fresh
air which reduces it efficiency and may prevent adequate heat delivery.
3.3
How Close To Your Pool?
Normally, the pool heat pump is installed within 7.5 meters of the pool. The longer the distance from the pool, the
greater the heat loss from the piping. For the most part the piping is buried. Therefore, the heat loss is minimal for
runs of up to15 meters (15 meters to and from the pump = 30 meters total), unless the ground is wet or the water
table is high. A very rough estimate of heat loss per 30 meters is 0.6 kW-hour,(2000BTU) for every 5 difference
in temperature between the pool water and the ground surrounding the pipe, which translates to about 3% to 5%
increase in run time.
Chlorinator cell
Water outlet
Valve
supply
Water
Pool
Water inlet
Sand filter
(or other typefilter)
Waterpump
Installation items:

Related product manuals