EasyManua.ls Logo

Athena S Series - Standard Wiring Diagrams

Default Icon
20 pages
Print Icon
To Next Page IconTo Next Page
To Next Page IconTo Next Page
To Previous Page IconTo Previous Page
To Previous Page IconTo Previous Page
Loading...
Series S Solid-State Staging Controller Instruction Manual
6
Series S Solid-State Staging Controller Instruction Manual
7
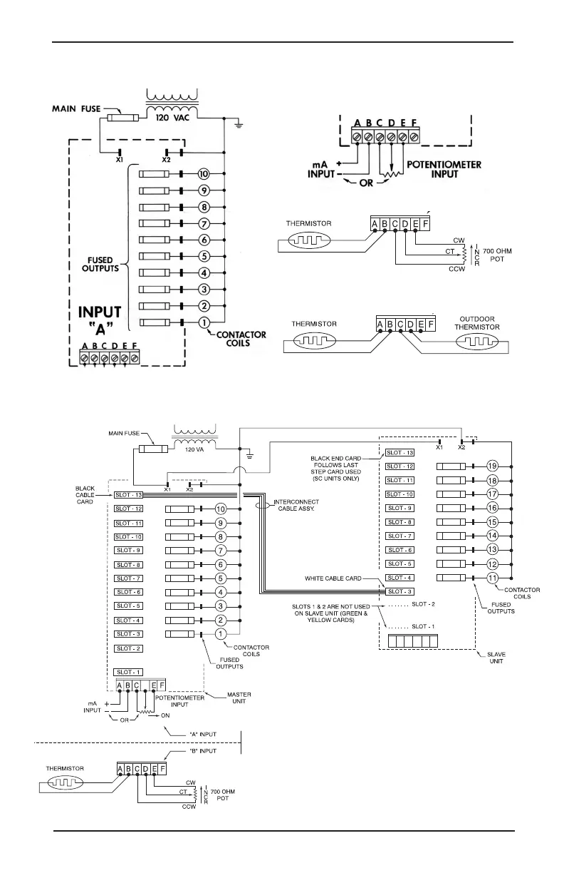
Standard Wiring (up to 10 steps)
Standard Wiring (11 to 18 steps)
“A”
“A”
“B”
“C”

Related product manuals