EasyManua.ls Logo

Atlas Copco DWS 450 VSD+

Atlas Copco DWS 450 VSD+
137 pages
To Next Page IconTo Next Page
To Next Page IconTo Next Page
To Previous Page IconTo Previous Page
To Previous Page IconTo Previous Page
Loading...
Medium: air or natural gas (flow rate - 1100 l/min Qv = 6 bar)
Supply pressure must be clean, dry air that meets the requirements of
ISA Standard 7.0.01
Maximum 40 micrometre particle size in the air system is acceptable.
Further filtration down to 5 micrometre particle size is recommended.
Lubricant content is not to exceed 1 ppm weight (w/w) or volume (v/v) basis.
Condensation in the air supply should be minimized.
6.4. Lubrication
The dry pumping systems are given a charge of oil before leaving the factory.
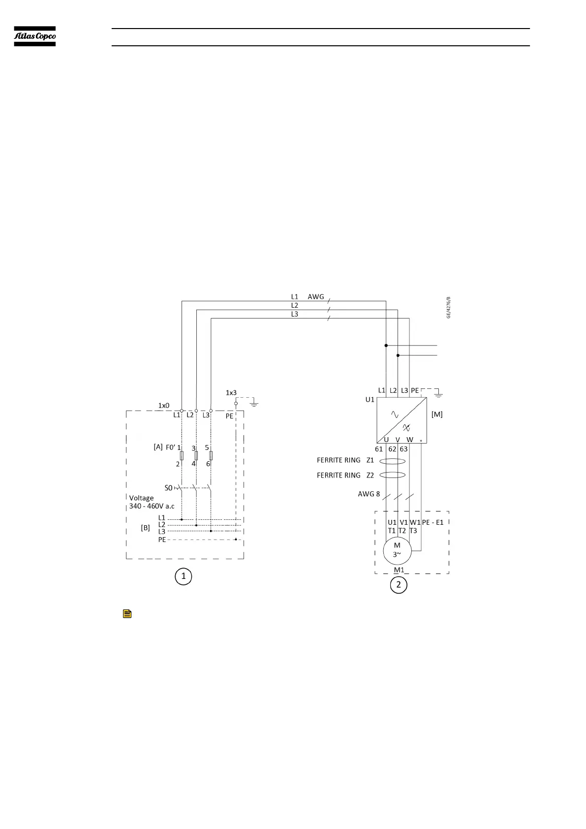
6.5. Electrical connections
Figure 17 Service diagram
Note:
You can find the electrical diagram in the electric cabinet.
Description
Refer to
Dimension drawing on page 18 for the correct position of the electrical
connection.
1. Give an isolating switch.
2. Check that the motor cables and wires in the electric cabinet are connected to
their terminals.
07/2021 - ©Atlas CopcoPage 851950840208_A
Installation

Table of Contents

Related product manuals