EasyManua.ls Logo

Atlas Copco GA 30 VSD+

Atlas Copco GA 30 VSD+
124 pages
To Next Page IconTo Next Page
To Next Page IconTo Next Page
To Previous Page IconTo Previous Page
To Previous Page IconTo Previous Page
Loading...
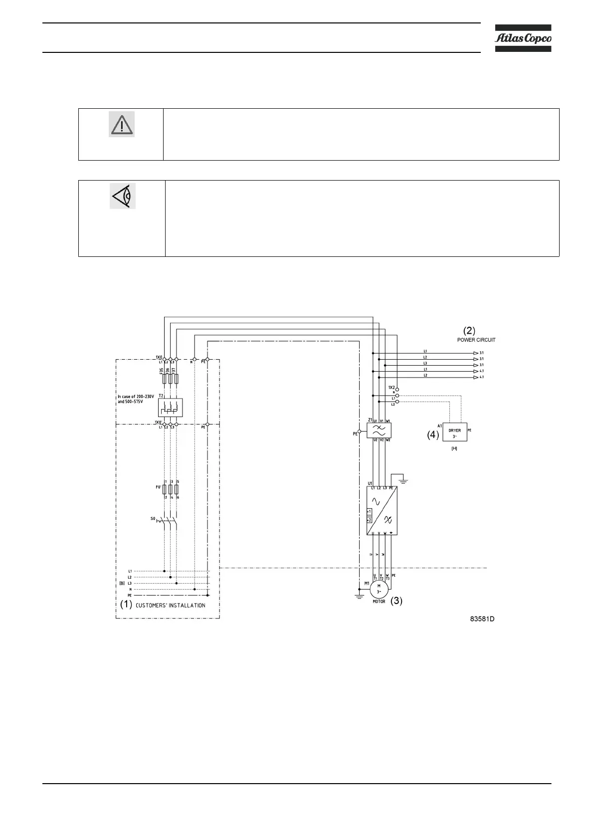
4.3 Electrical connections
Working with machinery controlled by a frequency converter requires special safety
precautions.
These safety precautions depend on the kind of network used (TN, TT, IT system).
Consult Atlas Copco.
Most compressors are designed for use in TT/TN networks and are intended for
industrial environments where the electrical supply is separated from the residential/
commercial supply network.
To use the machine in light industrial, commercial or residential environments with a
shared supply network or in an IT network, additional measures may be required.
Contact Atlas Copco.
Electrical connections for GA 18 VSD+ up to GA 30 VSD+
Instruction book
2920 7110 05 59

Related product manuals