EasyManua.ls Logo

Atlas Copco GA22 - Page 20

Atlas Copco GA22
39 pages
To Next Page IconTo Next Page
To Next Page IconTo Next Page
To Previous Page IconTo Previous Page
To Previous Page IconTo Previous Page
Loading...
2920 1462 00
20
Instruction book
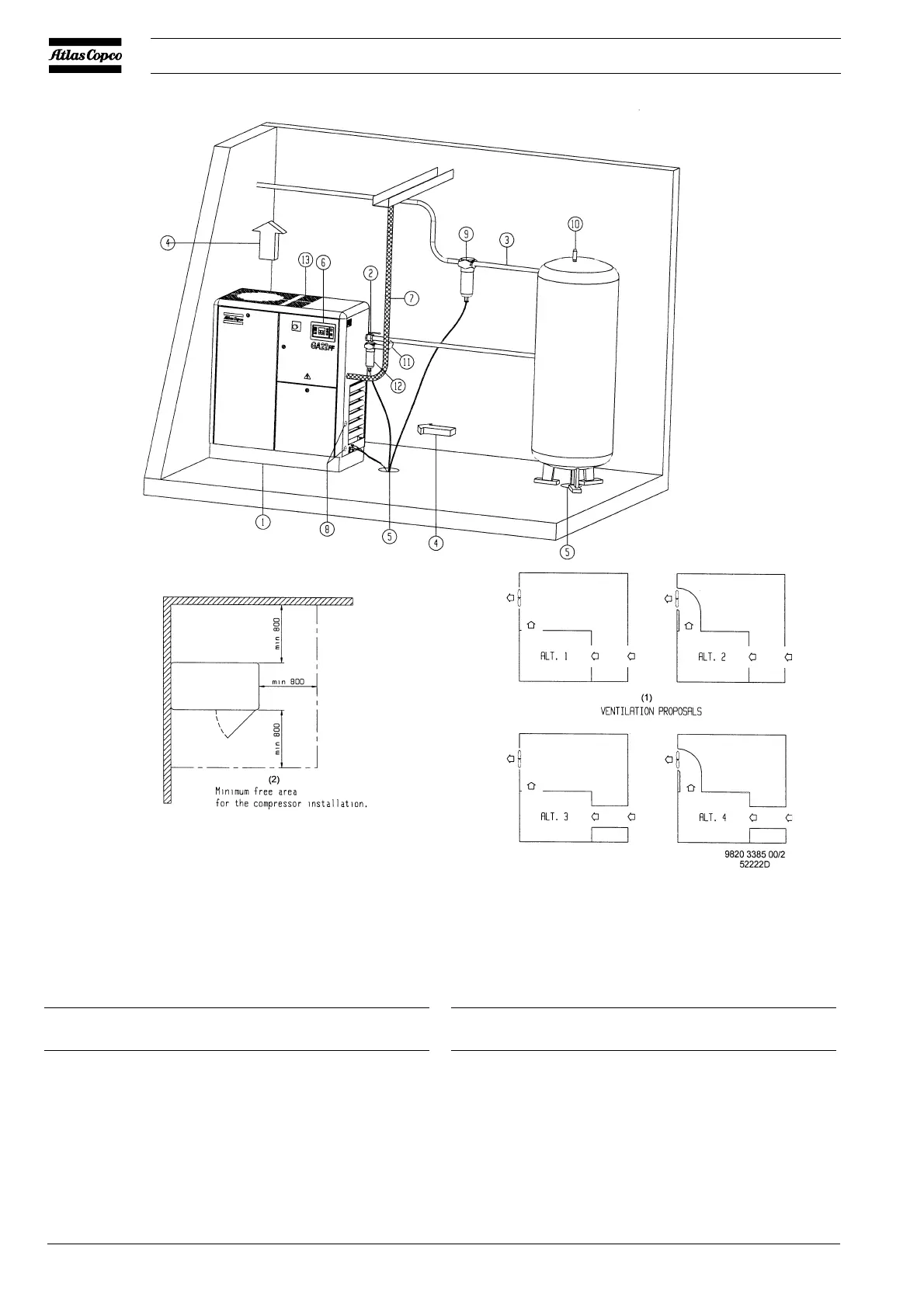
Ref. Description/recommendation
- For alternatives 1 and 3, the required ventilation
capacity to limit the compressor room temperature
can be calculated as follows:
Qv = 1.06 N / dT for GA Pack/Workplace
Qv = (1.06 N + 1.3) / dT for GA Pack FF/
Workplace FF
Ref. Description/recommendation
Qv = required ventilation capacity in m³/s
N = nominal motor power of compressor in
kW
dT = temperature increase in compressor room
- For alternatives 2 and 4: the fan capacity should
match the compressor fan capacity at a pressure
head equal to the pressure drop over the air ducts.
Fig. 2.2 Installation proposal

Table of Contents

Other manuals for Atlas Copco GA22

Related product manuals