EasyManua.ls Logo

Atlas Copco GHS 730 VSD+ - Page 73

Atlas Copco GHS 730 VSD+
124 pages
To Next Page IconTo Next Page
To Next Page IconTo Next Page
To Previous Page IconTo Previous Page
To Previous Page IconTo Previous Page
Loading...
Instruction book
6996 0227 40 73
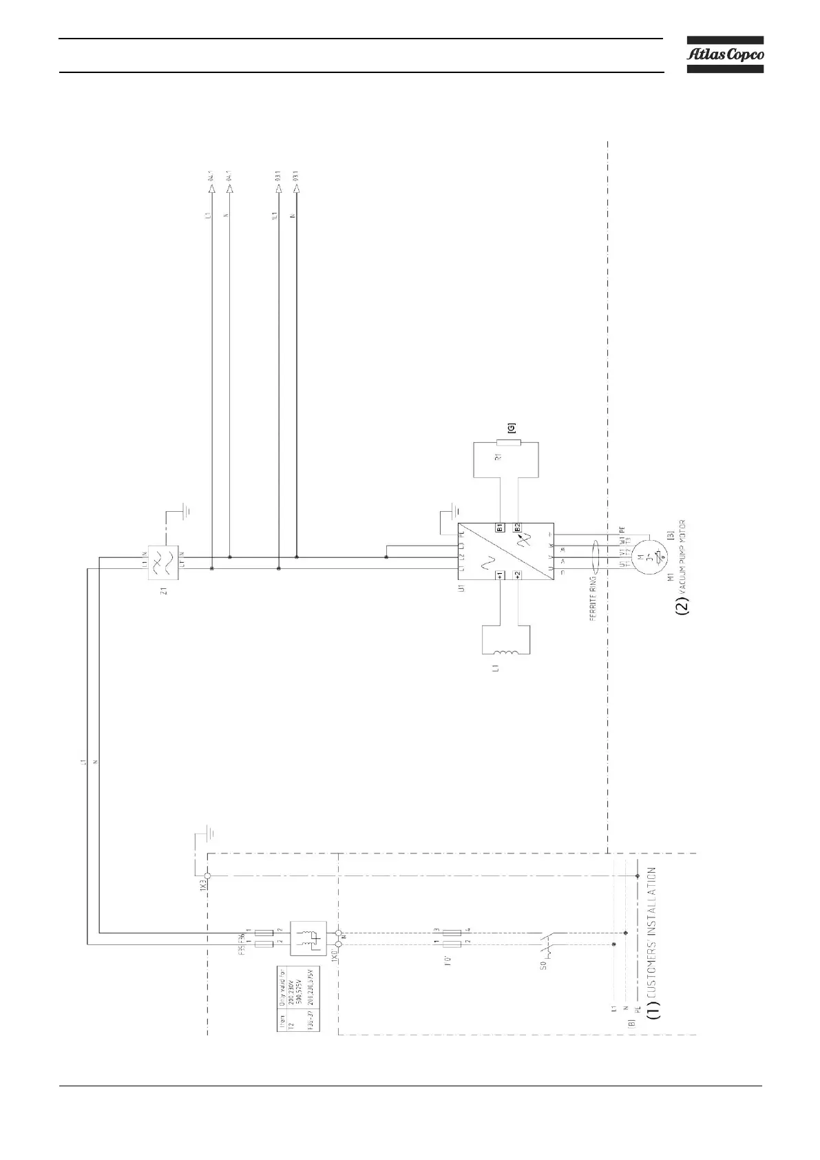
Electrical connections 1 ph GHS 350 VSD+ up to GHS 730 VSD+
Service diagram

Related product manuals