EasyManua.ls Logo

Atlas Copco LFx 1.5

Atlas Copco LFx 1.5
50 pages
To Next Page IconTo Next Page
To Next Page IconTo Next Page
To Previous Page IconTo Previous Page
To Previous Page IconTo Previous Page
Loading...
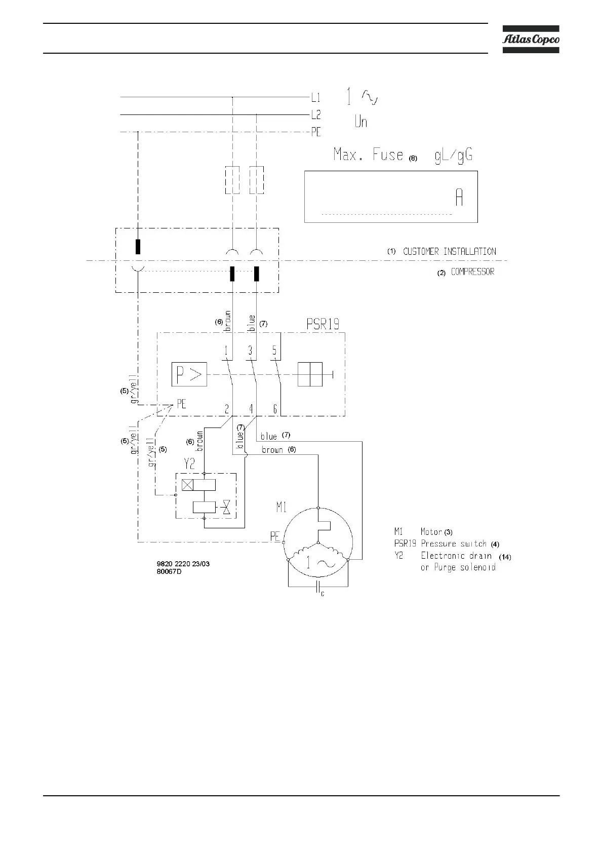
Single-phase with electronic drain or purge solenoid
Instruction book
2920 7002 03 27

Related product manuals