EasyManua.ls Logo

Atlas Copco LT55

Atlas Copco LT55
48 pages
To Next Page IconTo Next Page
To Next Page IconTo Next Page
To Previous Page IconTo Previous Page
To Previous Page IconTo Previous Page
Loading...
2920 1257 04
22
Instruction book
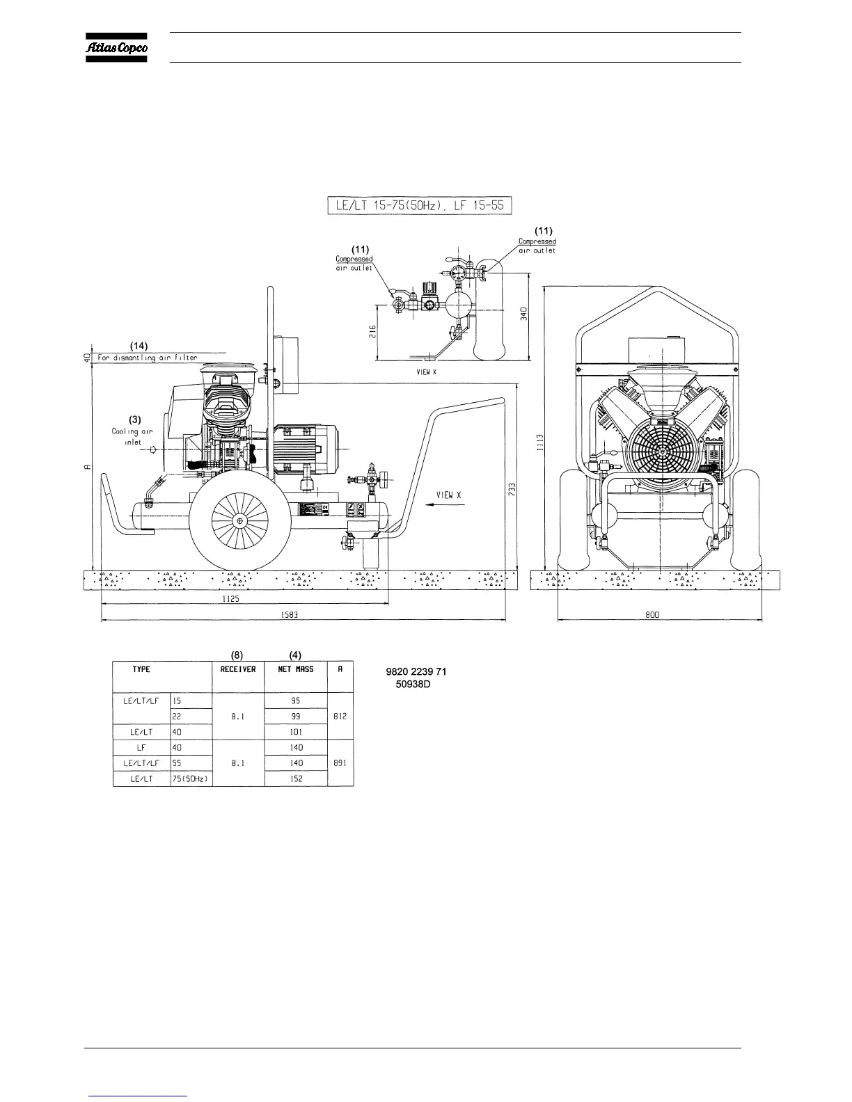
Fig. 2.13 Dimension drawing, LE/LF/LT Trolley with electrical motor

Table of Contents

Related product manuals