EasyManua.ls Logo

Atlas Copco XAHS 37 DD

Atlas Copco XAHS 37 DD
64 pages
To Next Page IconTo Next Page
To Next Page IconTo Next Page
To Previous Page IconTo Previous Page
To Previous Page IconTo Previous Page
Loading...
18
Instruction Manual
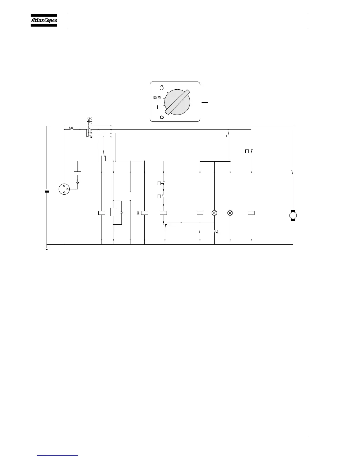
2.8 ELECTRICAL SYSTEM
2.8.1 CIRCUIT DIAGRAM (STANDARD)
The compressor is equipped with a negative earthed system.
Fig. 2.4 Circuit diagram (No. 9822 0797 01)
F1 Circuit Breaker (10 A) M1 Starter Motor
G1 Alternator P1 Hourmeter
G2 Battery S1 Contact Switch (Off-On-Override-start)
H1 Temperature Alarm Lamp S2 Temperature Switch Engine
H2 General Alarm Lamp S3 Oil Pressure Switch Engine
K0 Starter Solenoid (part of M1) S4 Lamptest Switch
K1 Shut-down Relay S5 Temperature Switch Compressor
K2 Blocking Relay Y1 Fuel Solenoid Valve
K3 Override Start Relay V1 Diode
K4 Start Relay V2 Diode
S1
3
2
1
0
q
q
21
20
6
8
7
9
24
25
28
29
3
5
4
21
12
14
26
27
12«
34
35
9´,10´,11´
p
12V DC
Te mp
K1
General
alarm
(Lamp-
tester)
13«
15«
14«
11
10
13
11999
15
14
Auxiliary
33338
18
1615
4
3
2
1
3
2
1
0
32
33
31
30
5
10A
2322
19
17
6
7
D-
D+
B+
+
M
M1
K0
S2
S3
G2
G1
K4
F1
S1
K4
K3
S5
K1H2H1K2
S4
K2
1212
V1
h
12121212121212
K3Y1
P1
K0
V2
10
13

Table of Contents

Related product manuals