EasyManua.ls Logo

Atlas Copco XAHS 37 DD

Atlas Copco XAHS 37 DD
64 pages
To Next Page IconTo Next Page
To Next Page IconTo Next Page
To Previous Page IconTo Previous Page
To Previous Page IconTo Previous Page
Loading...
28
Instruction Manual
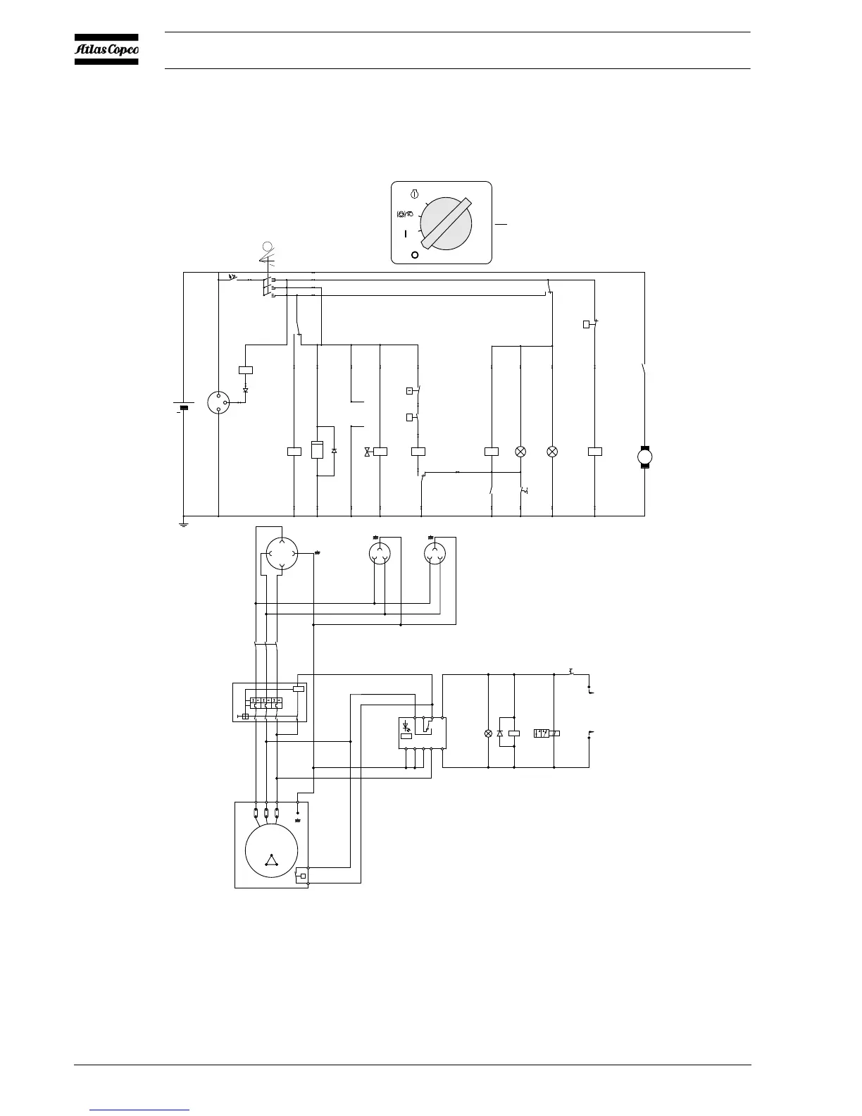
2.8.6 CIRCUIT DIAGRAM XAS 47 DDG -
XAS 90 DD7G (G
ENERATOR DDG IT 230V,
6
KVA)
(Not on HardHat)
The compressor is equipped with a negative earthed system.
10
12 12 12 12 12 12 12
V2
h
V1
12
12
K2
S4
K2
H1
H2
K1
S5
K3
K4
S1
F1
K4
G1
G2
K0
P1
Y1
K3
S3
S2
K0
M1
M
+
B+
D+
D-
6'
7
6
17
19
22 23
10A
5
30
31
33
32
1
2
3
4
15
16
18
83 3 3 3
35
34
12'
27
26
3'
4'
14
12
2'
1'
7'
8'
15
12
4
99 9 11
13
10
11
14'
15'
13'
5
3
29
28
25
24
9
7
8
6
20
21
(Lamp-
tester)
General
alarm
K1
Temp
5'
12V DC
0
p
9',10',11'
0
1
2
3
13
Auxiliary
To Circuit diagram
9822 1055 26
S1
3
2
1
0
X1.3
L1
L2
L2L1
16A
c54
c0c0
X1.1
X1.2
L3
L2
L1
32A
L2L1
16A
H3
S6
u
EA
A1
A2
K5
52
51
S7
P
B
R
Y2
K5
1
2
3
4
5
6
U1
V1
W1
1V1
1U1
1W1
W1
L1
L2
L3
1L1
1L2
16A
Q1
16A 16A
b3
G
G3
U2 V2W2
U1 V1 W1
13
13
W1
V1
16
12
3
13
b6 b6
12
b6
b3
b0
b6
To Circuit diagram
9822 0797 01
b6
b3
V1
13
12
12
b3
16
b0
16
b0
V1
35
34
c54
c0c0
e54
c0c0c0
c0c0c0
c0c0c0
b0
L1
L2
b54
b0
b6
12
b54
b54
b3b0b0
L
A2
A1
PE
TR
14 12
11
R<
K6
D1
c0
c0
D1 Diode
F1 Circuit Breaker (10 A)
G1 Alternator
G2 Battery
G3 Generator
H1 Temperature Alarm Lamp
H2 General Alarm Lamp
H3 Lamp (Power Control)
K0 Starter Solenoid (part of M1)
K1 Shut-down Relay
K2 Blocking Relay
K3 Override Start Relay
K4 Start Relay
K5 Contactor/4-pole
K6 Insulation monitoring relay
M1 Starter Motor
P1 Hourmeter
Q1 Main circuit breaker 3-pole +
shunt tripcoil
S1 Contact Switch
(Off-On-Override-start)
S2 Temperature Switch Engine
S3 Oil Pressure Switch Engine
S4 Lamptest Switch
S5 Temperature Switch Compressor
S6 Thermalcontact
S7 Switch
(Generator-compressor)
V1 Diode
V2 Diode
X1.1 Socket outlet
X1.2 Socket outlet
X1.3 Socket outlet
Y1 Fuel solenoid Valve
Y2 Solenoid valve
(Generator action)
Circuit diagram (No. 9822 0797 01 + No. 9822 1055 26)
For location of relais K1, K2, K3, K4, see paragraph 2.8.1
Fig. 2.10

Table of Contents

Related product manuals