EasyManua.ls Logo

Atlas Copco XAHS 37 DD

Atlas Copco XAHS 37 DD
64 pages
To Next Page IconTo Next Page
To Next Page IconTo Next Page
To Previous Page IconTo Previous Page
To Previous Page IconTo Previous Page
Loading...
24
Instruction Manual
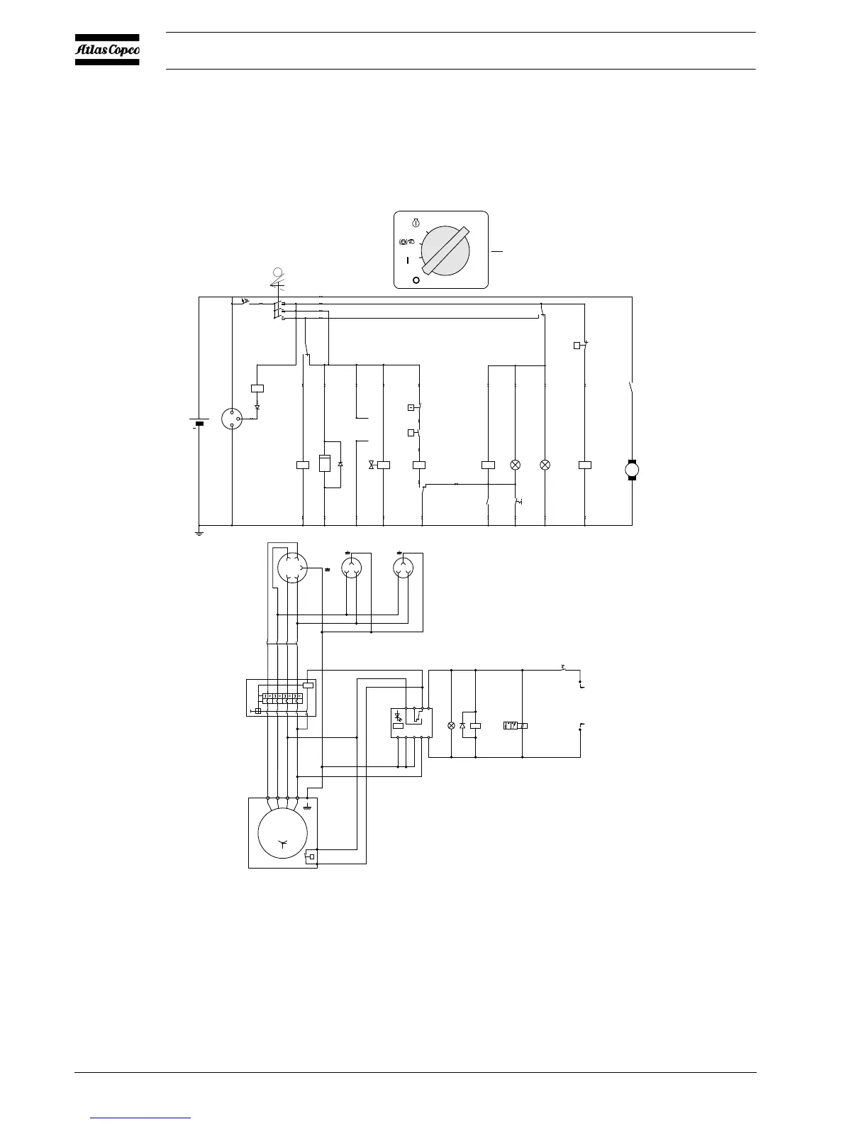
2.8.4 CIRCUIT DIAGRAM XAS 47 DDG -
XAS 90 DD7G (G
ENERATOR DDG IT 230/
400V
WITHOUT AUTOMATIC CONTROL
SYSTEM)
(Not on HardHat)
The compressor is equipped with a negative earthed system.
D1 Diode
F1 Circuit Breaker (10 A)
G1 Alternator
G2 Battery
G3 Generator
H1 Temperature Alarm Lamp
H2 General Alarm Lamp
H3 Lamp (Power Control)
K0 Starter Solenoid (part of M1)
K1 Shut-down Relay
K2 Blocking Relay
K3 Override Start Relay
K4 Start Relay
K5 Contactor/4-pole
K6 Insulation monitoring relay
M1 Starter Motor
P1 Hourmeter
Q1 Main circuit breaker 4-pole +
shunt tripcoil
S1 Contact Switch
(Off-On-Override-start)
S2 Temperature Switch Engine
S3 Oil Pressure Switch Engine
S4 Lamptest Switch
S5 Temperature Switch Compressor
S6 Thermalcontact
S7 Switch (Generator-compressor)
V1 Diode
V2 Diode
X1.1 Socket outlet
X1.2 Socket outlet
X1.3 Socket outlet
Y1 Fuel solenoid Valve
Y2 Solenoid valve
(Generator action)
Circuit diagram (No. 9822 0797 01 + No. 9822 1055 25)
For location of relais K1, K2, K3, K4, see paragraph 2.8.1
Fig. 2.8

Table of Contents

Related product manuals