EasyManua.ls Logo

Atlas Copco ZT 55 - Installation; Dimension Drawings

Atlas Copco ZT 55
138 pages
To Next Page IconTo Next Page
To Next Page IconTo Next Page
To Previous Page IconTo Previous Page
To Previous Page IconTo Previous Page
Loading...
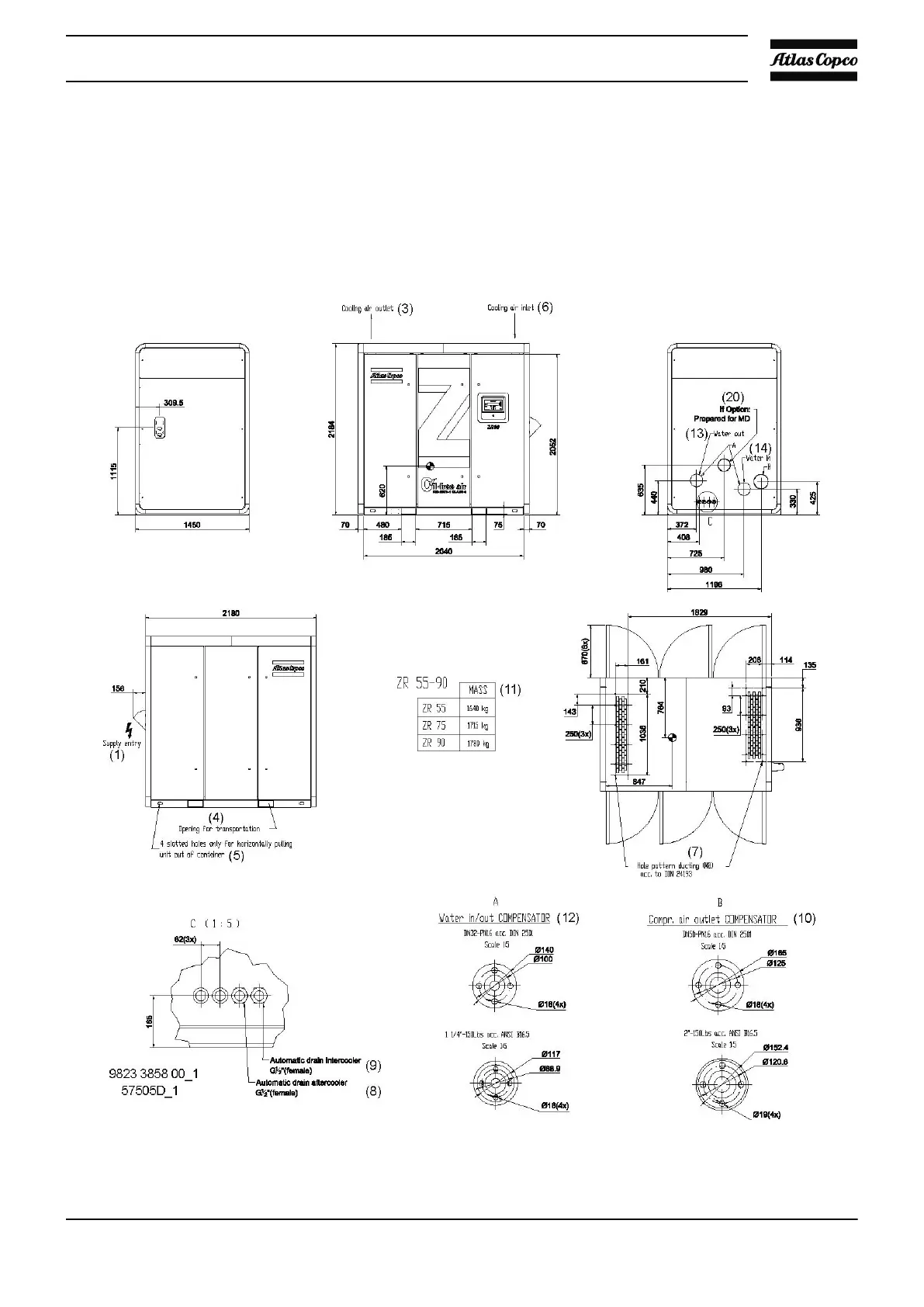
4 Installation
4.1 Dimension drawings
Dimension drawing, ZR Pack
Instruction book
73

Table of Contents

Related product manuals