EasyManua.ls Logo

Atlas Copco ZT-75 - Installation Proposals

Atlas Copco ZT-75
138 pages
To Next Page IconTo Next Page
To Next Page IconTo Next Page
To Previous Page IconTo Previous Page
To Previous Page IconTo Previous Page
Loading...
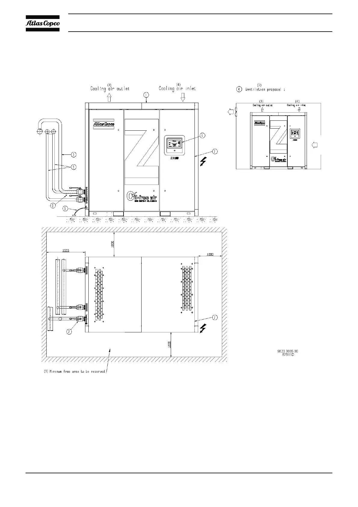
4.2 Installation proposals
Installation proposal, ZR Pack, ZR Full-Feature and ZR Pack with energy recovery
Instruction book
80

Table of Contents

Related product manuals