EasyManua.ls Logo

AuCom MVS Series - Control Terminations; Electrical Schematic

AuCom MVS Series
22 pages
Print Icon
To Next Page IconTo Next Page
To Next Page IconTo Next Page
To Previous Page IconTo Previous Page
To Previous Page IconTo Previous Page
Loading...
INSTALLATION
710-03261-00A 12 MVS SERIES
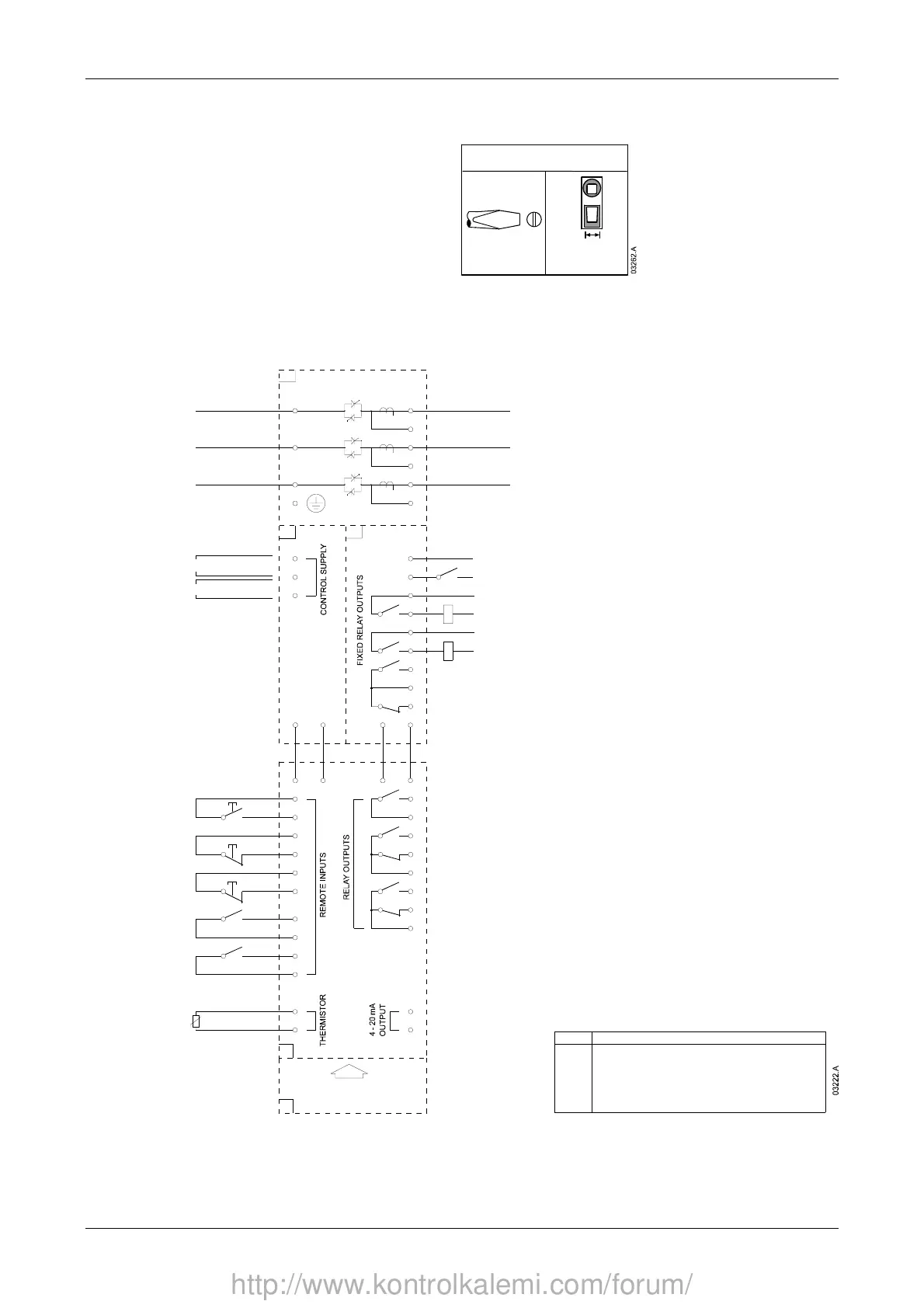
4.4 Control Terminations
Control wiring is secured in place by 3 mm spring terminals.
Control Wiring
3
(0.12)
mm (inch)
4.5 Electrical Schematic
Diagram 1: Electrical Schematic
K2M
BYPASS CONTACTOR
MAIN CONTACTOR
E
A3A2
TO MOTOR
SUPPLY
3 PHASE
ITEM
A1
A2
A3
A4
A6
K1M
K2M
DESCRIPTION
POWER ASSEMBLY
CONTROL VOLTAGE TERMINAL BLOCK
POWER INTERFACE PCB
CONTROLLER
COMMS MODULE (OPTIONAL)
MAIN CONTACTOR
BYPASS CONTACTOR
T3
T2
T1
L3
L2
L1
T3B
T2B
T1B
A1
K1M
K2M
110~130 VAC
220~240VAC
- 15
+ 10
- 15
+ 10
TXRX
RXTX
A12A11
A12A11
-
+
34
31
32
RUN OUTPUT
(PFC)
FEEDBACK SIGNAL
BYPASS CONTACTOR
C74
C73
C42
C41
ANALOGUE OUTPUT
PROGRAMMABLE
B11
B10
OUTPUT C
PROGRAMMABLE
OUTPUT B
PROGRAMMABLE
OUTPUT A
PROGRAMMABLE
61
62
64
51
52
54
44
43
24
23
14
13
B5
B4
(OPTIONAL)
COMMS MODULE
THERMISTOR
MOTOR
C64
C63
C54
C53
INPUT B
RESET
STOP
START
C32
C31
C24
C23
A3
A2
A1
PROGRAMMABLE
INPUT A
PROGRAMMABLE
A4
A6
(Wh) (Bk)
(Bk) (Wh)
http://www.kontrolkalemi.com/forum/