EasyManua.ls Logo

Axminster AWBB - Page 13

Axminster AWBB
24 pages
Print Icon
To Next Page IconTo Next Page
To Next Page IconTo Next Page
To Previous Page IconTo Previous Page
To Previous Page IconTo Previous Page
Loading...
WHITE
AXMINSTER
W
13
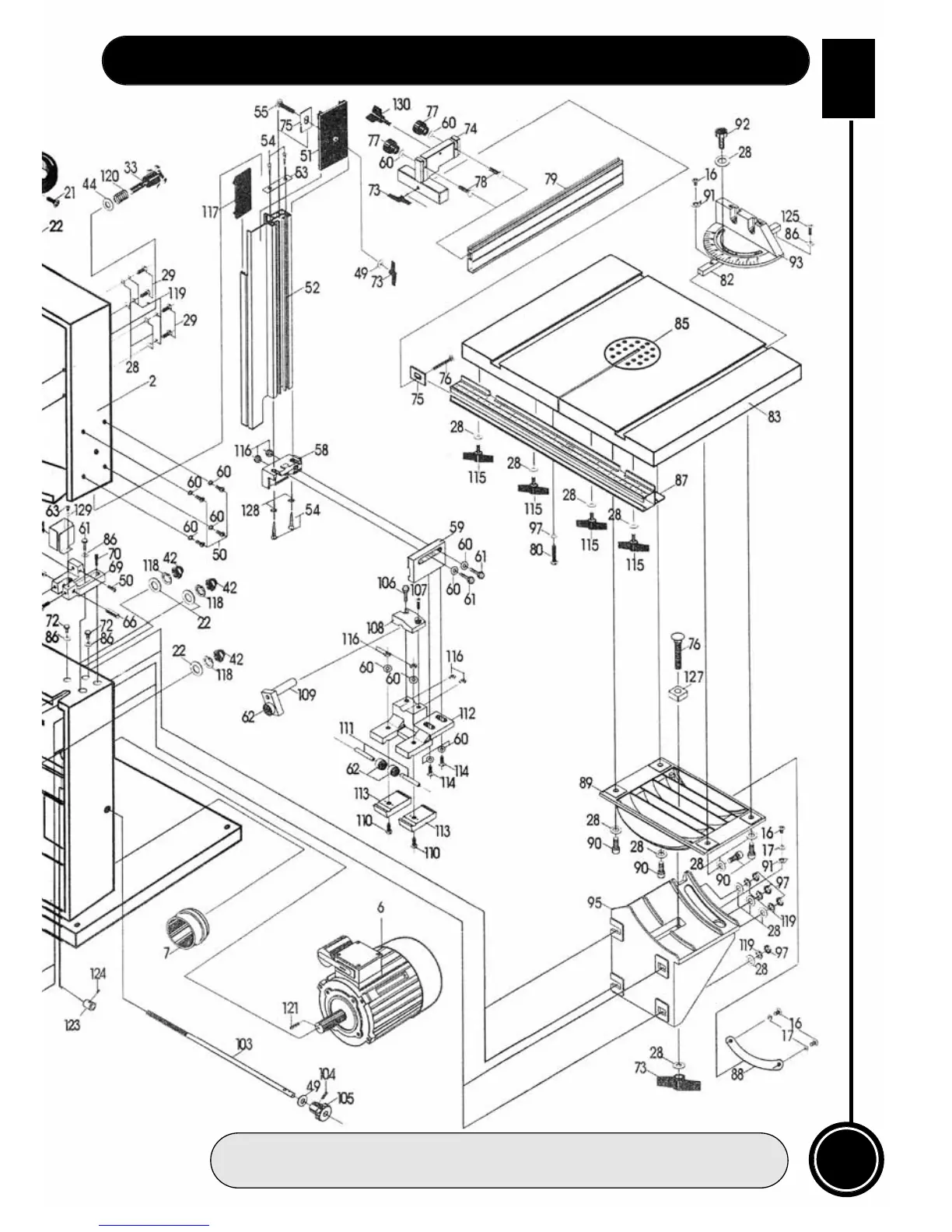
Parts Breakdown...
FREEPHONE 0800 371822

Related product manuals