EasyManua.ls Logo

Barnstead 47900 - Page 57

Default Icon
60 pages
Print Icon
To Next Page IconTo Next Page
To Next Page IconTo Next Page
To Previous Page IconTo Previous Page
To Previous Page IconTo Previous Page
Loading...
57
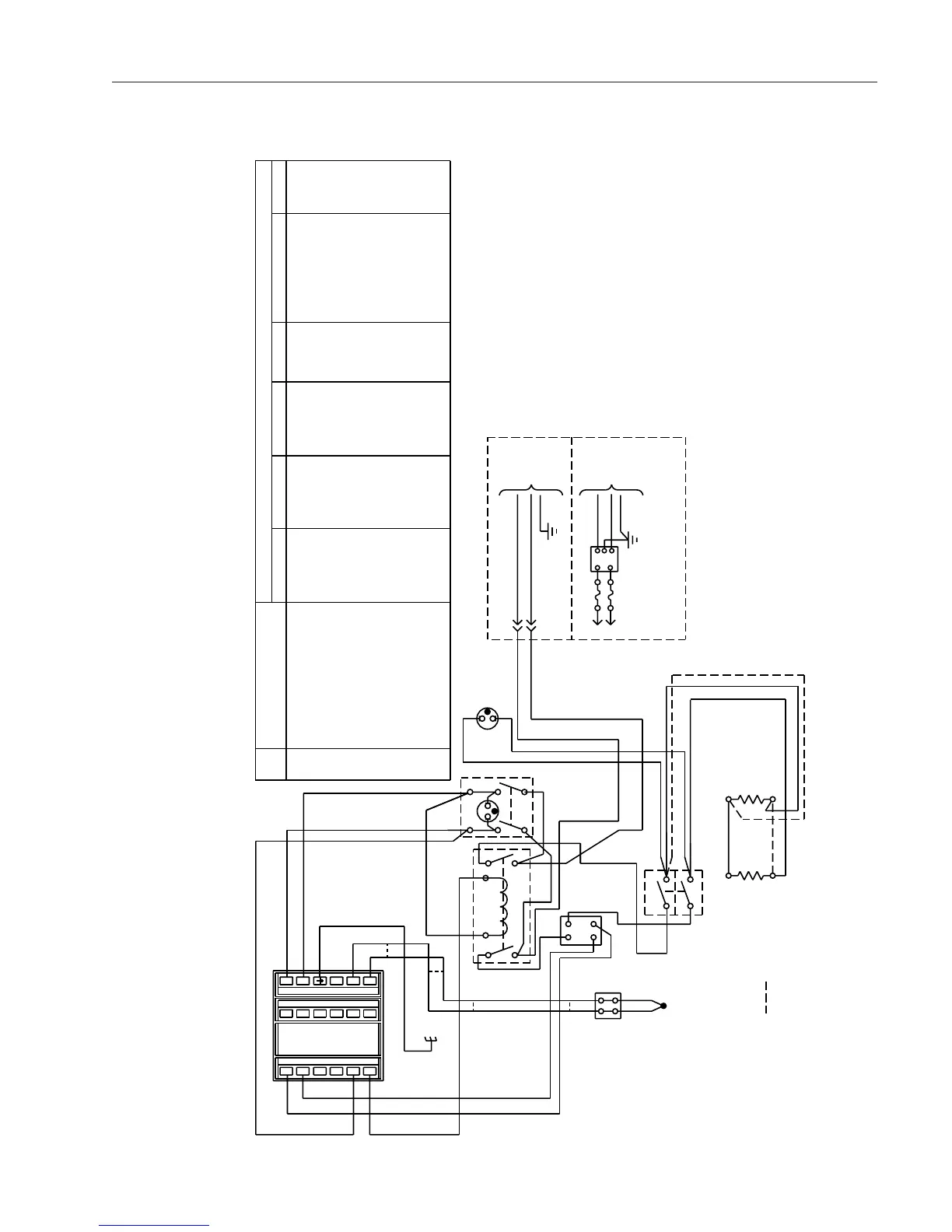
WIRING D
IAGRAMS
8 SEGMENT PROGRAMMABLE CONTROL
F47950-33
ONLY
RY1
F2
F1
DS1
GND
FL1
LOAD
LINE
GND
G
L2
LINE
G
L2
L1
LINE
L1
H1
T2
T1
H2
T3
T4
1A
1B
3B
3A
2B
2A
HF
HE
HD
HC
HB
HA
N
L
V-
V+
VI
YLW
TC+
TC1
TB1
GND
S3
RED
TC-
RY2
1
4
2
3
S2
+-
S1
DASHED LINES " "
WIRING DIAGRAM
WIRE CONNECTIONS.
DENOTE 100/120 V.
NOTES:
TC1165X1
FZX30
FZX30
SWX163
CAX94
PLX82
RYX57
RYX34
SWX163
SWX144
MODEL NO. AND OUR PART NO.(s)
DIAGRAM COMPONENT LIST
THERMOCOUPLE
DOOR SWITCH
FILTER, EMI
DESCRIPTION
CONTROL
PILOT LIGHT, NEON
HEATING ELEMENT
DOOR SWITCH
SWITCH
RELAY, DPST, N.O.
HEATING ELEMENT
SOLID STATE RELAY
S1
TC1
S3
S2
REF.
FUSEF2
FUSEF1
FL1
NO.
RY1
RY2
H2
H1
DS1
CN1
SWX144SWX144
TC1165X1
SWX163
SWX163
TC1165X1
SWX163
SWX163
F48020-80
CN71X74
EL480X1A
PLX82
RYX57
RYX34
PLX82
F48020-26-80
RYX34
RYX57
SWX144SWX143 SWX143
TC1165X1
SWX163
SWX163
TC1165X1
SWX163
SWX163
TC1165X1
SWX163
SWX163
F48025-80, F48025-60-80
PLX76
RYX56
RYX34
PLX76
EL480X2A
F48024-80
RYX34
RYX56
PLX82
F48028-80
RYX34
RYX57
F48020-33-80
CN71X74 CN71X97 CN71X74 CN71X74 CN71X74
EL480X1A EL1205X1 EL480X1A
EL480X1A EL480X1A EL1205X1 EL480X1A
EL480X2A
EL480X2A EL480X2A
TERMINAL BLOCKTB1 TRX136 TRX136 TRX136 TRX136 TRX136 TRX136

Related product manuals