EasyManua.ls Logo

Barnstead 47900 - Page 58

Default Icon
60 pages
Print Icon
To Next Page IconTo Next Page
To Next Page IconTo Next Page
To Previous Page IconTo Previous Page
To Previous Page IconTo Previous Page
Loading...
58
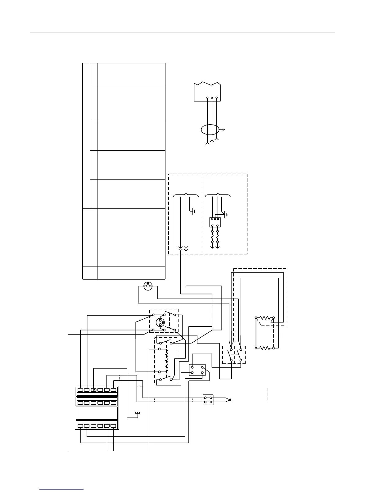
WIRING D
IAGRAMS
4 X 16 SEGMENT PROGRAMMABLE CONTROL
YLW
TC+
TC1
TB1
GND
1A
1B
3B
3A
2B
2A
S3
RED
TC-
RY2
1
4
2
3
S2
RY1
S1
HF
HE
HD
HC
HB
HA
N
L
V-
V+
VI
DS1
F48050-33 ONLY
F1
F2
GND
LINE
LOAD
FL1
GND
L1
LINE
L1
L2
G
LINE
L2
G
SG
TD
RD
7
3
2
O
B
W
HD
HE
HF
+-
CONNECTOR
COMMUNICATION CABLE WIRING
CONTROLLER
TC1165XA
FZX30
FZX30
SWX163
CAX94
PLX82
RYX57
RYX34
SWX163
SWX144
F48050-33
MODEL NO. AND OUR PART NO.(s)
DIAGRAM COMPONENT LIST
THERMALCOUPLE
DOOR SWITCH
FILTER, EMI
DESCRIPTION
CONTROL
PILOT LIGHT, NEON
HEATING ELEMENT
DOOR SWITCH
SWITCH
RELAY, DPST, N.O.
HEATING ELEMENT
SOLID STATE RELAY
S1
TC1
S3
S2
REF.
FUSEF2
FUSEF1
FL1
NO.
RY1
RY2
H2
H1
DS1
CN1
SWX144SWX144
TC1165X1
SWX163
SWX163
TC1165X1
SWX163
SWX163
F48050
CN71X75
EL480X1A
PLX82
RYX57
RYX34
PLX82
F48050-26
RYX34
RYX57
SWX143 SWX144
TC1165X1
SWX163
SWX163
TC1165X1
SWX163
SWX163
F48058
PLX82
RYX57
RYX34
PLX76
EL480X1A
F48055, F48055-60
RYX34
RYX56
H1
T2
T1
H2
T3
T4
DASHED LINES " "
WIRE CONNECTIONS.
DENOTE 100/120 V.
NOTES:
TRX136TERMINAL BLOCKTB1 TRX136 TRX136 TRX136 TRX136
CN71X75 CN71X98 CN71X75 CN71X75
EL480X2AEL480X1A EL1205X1
EL480X1A EL480X1A EL1205X1 EL480X1A EL480X2A

Related product manuals