EasyManua.ls Logo

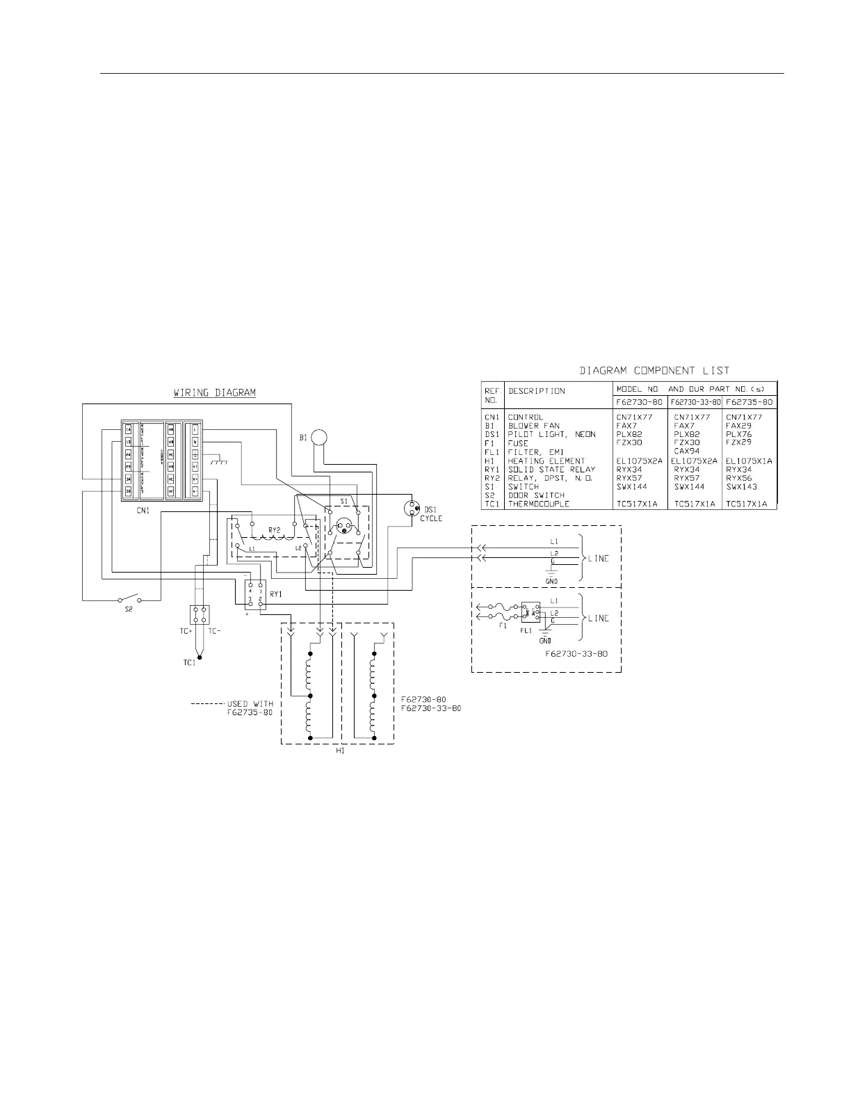
Barnstead F62730 - Wiring Diagrams (8 Segment); 8 Segment Programmable Controller Wiring Diagram

Default Icon
80 pages
Print Icon
To Next Page IconTo Next Page
To Next Page IconTo Next Page
To Previous Page IconTo Previous Page
To Previous Page IconTo Previous Page
Loading...
43
WIRING D
IAGRAMS
8 Segment Programmable Control
SW1172X1
SW1172X1
SW1172X1

Table of Contents

Related product manuals