EasyManua.ls Logo

BASI BUFM660 Series - Mounting Dimensions

Default Icon
29 pages
Print Icon
To Next Page IconTo Next Page
To Next Page IconTo Next Page
To Previous Page IconTo Previous Page
To Previous Page IconTo Previous Page
Loading...
9
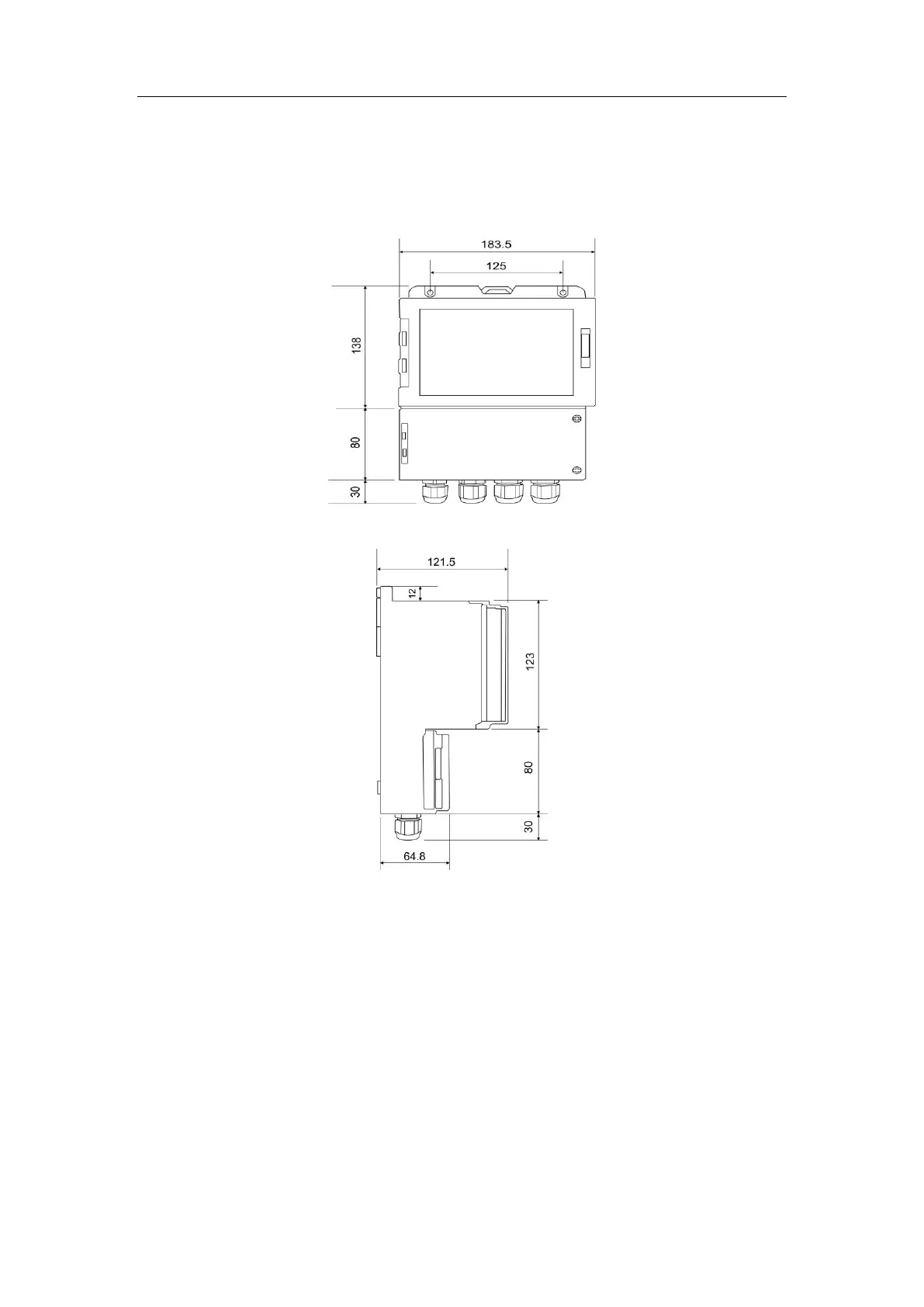
2.2 Mounting dimensions
The host