EasyManua.ls Logo

basIP AZ-07L - Page 6

basIP AZ-07L
12 pages
Print Icon
To Next Page IconTo Next Page
To Next Page IconTo Next Page
To Previous Page IconTo Previous Page
To Previous Page IconTo Previous Page
Loading...
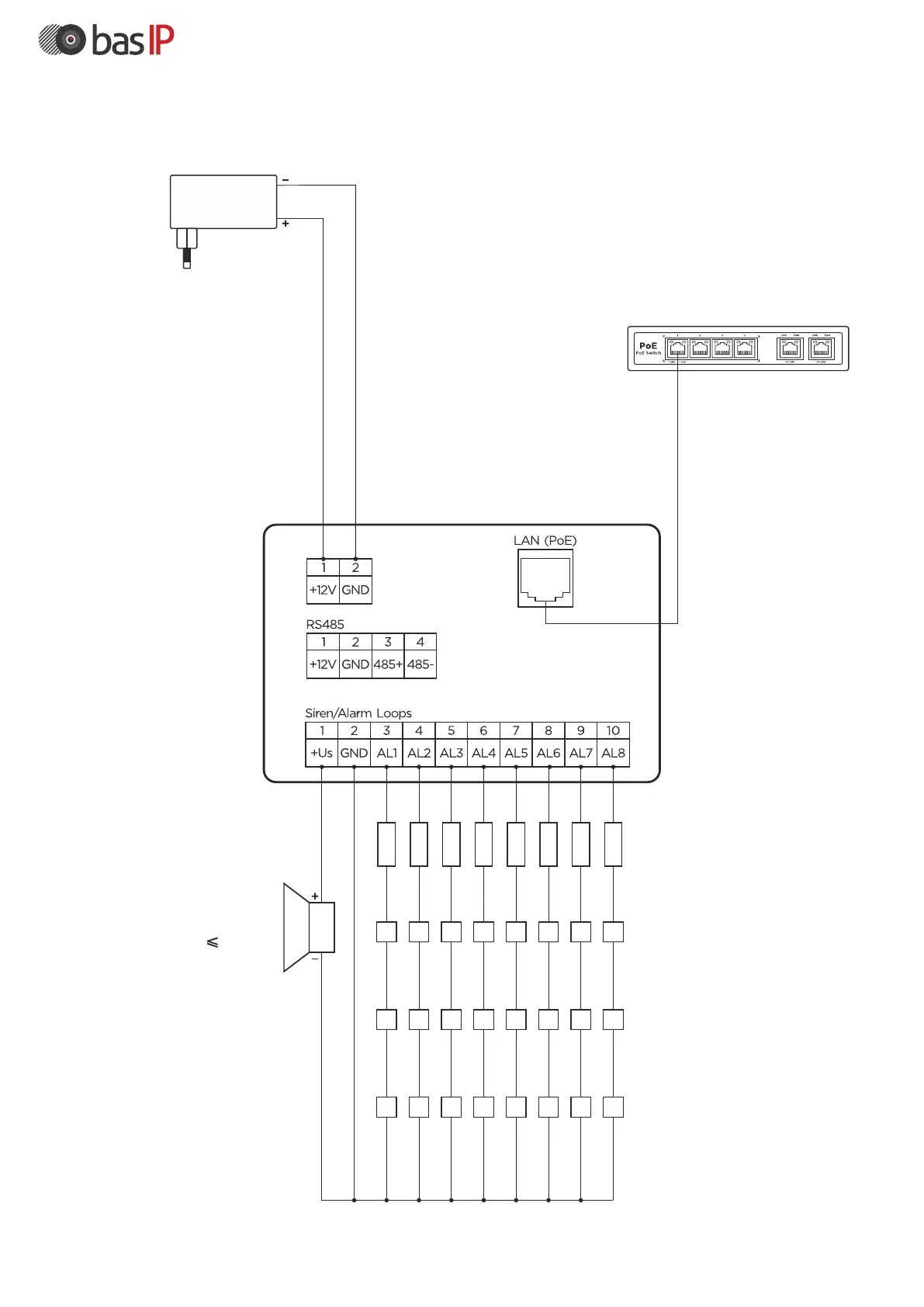
Supply
Wiring diagram for security alarm sensors with NC -
normally closed contact types
0,35A
Siren
12V
Sensor
1.2
2.2 kOhm
Sensor
Sensor
Sensor
Sensor
Sensor
Sensor
2.2
3.2
4.2
5.2
6.2
7.2
Sensor Sensor
8.2
1.1
2.1
3.1
4.1
5.1
6.1
7.1
8.1
1.n
2.n
3.n
4.n
5.n
6.n
7.n
8.n
2.2 kOhm
2.2 kOhm
2.2 kOhm
2.2 kOhm
2.2 kOhm
2.2 kOhm
2.2 kOhm
Switch
Power supply
12V, 2A
Sensor
Sensor
Sensor
Sensor
Sensor
Sensor
Sensor
Sensor
Sensor
Sensor
Sensor
Sensor
Sensor
Sensor
Sensor

Related product manuals