EasyManua.ls Logo

Baumatic BDW13 - Page 33

Baumatic BDW13
44 pages
Print Icon
To Next Page IconTo Next Page
To Next Page IconTo Next Page
To Previous Page IconTo Previous Page
To Previous Page IconTo Previous Page
Loading...
33
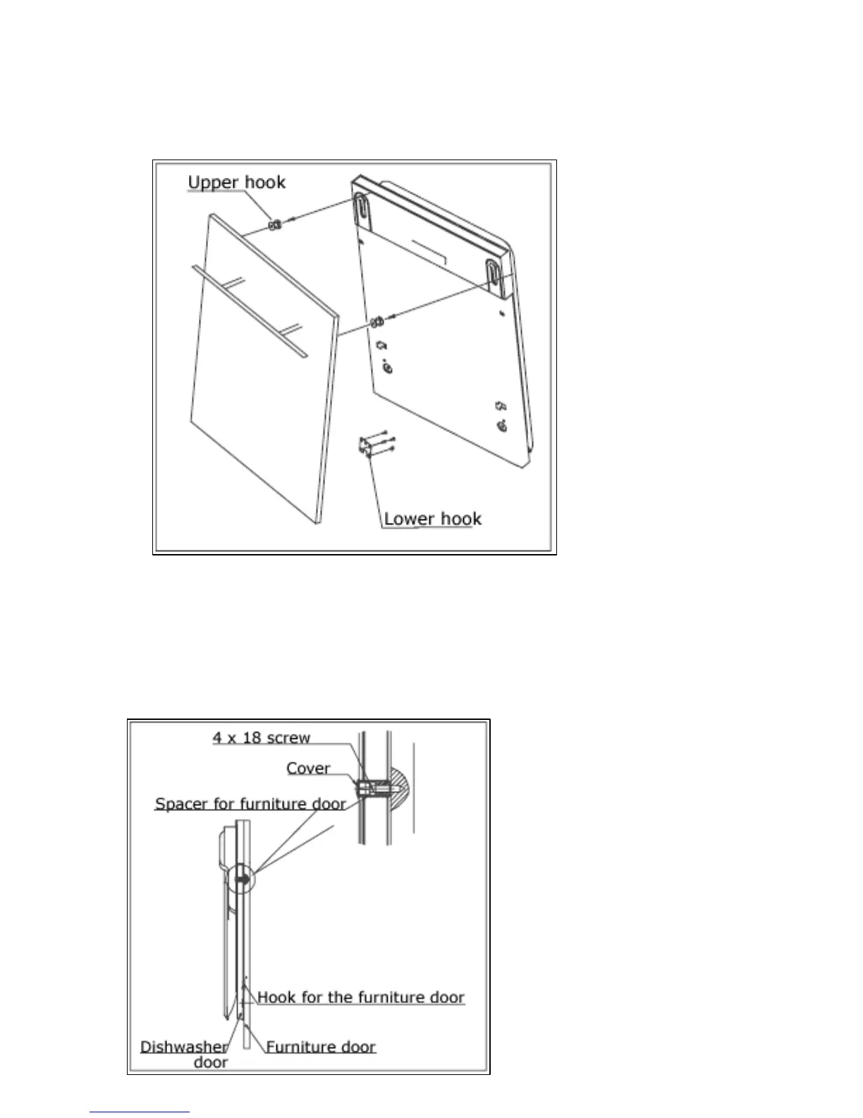
o The maximum weight of the furniture door should be 5.5
kilograms. The maximum thickness of the furniture door
should be 15 mm.
o Use the installation template supplied with the appliance to mark
up and then drill out the necessary holes in the furniture door.
o Attach the
upper hooks
onto the
furniture
door.
o Attach the
lower hooks
onto the
furniture
door.
o owards the dishwasher door, ensuring
o or downwards so it locks into place on the
Open the dishwasher
oor an
covers t
located
side of t
edge.
o Fu ly
screw
holes. M
that you screw them
tightly i
furniture door.
o Repl
Lift the furniture door t
that the upper and lower hooks locate into the slots on the
outside of the dishwasher door.
Push the furniture do
dishwasher door.
d find the
hat are
on either
he outer
o
d
l tighten the
s into the
ake sure
nto the
ace the covers.

Related product manuals