EasyManua.ls Logo

Baumatic BDW13 - Preparing and Connecting the Furniture Door

Baumatic BDW13
44 pages
Print Icon
To Next Page IconTo Next Page
To Next Page IconTo Next Page
To Previous Page IconTo Previous Page
To Previous Page IconTo Previous Page
Loading...
32
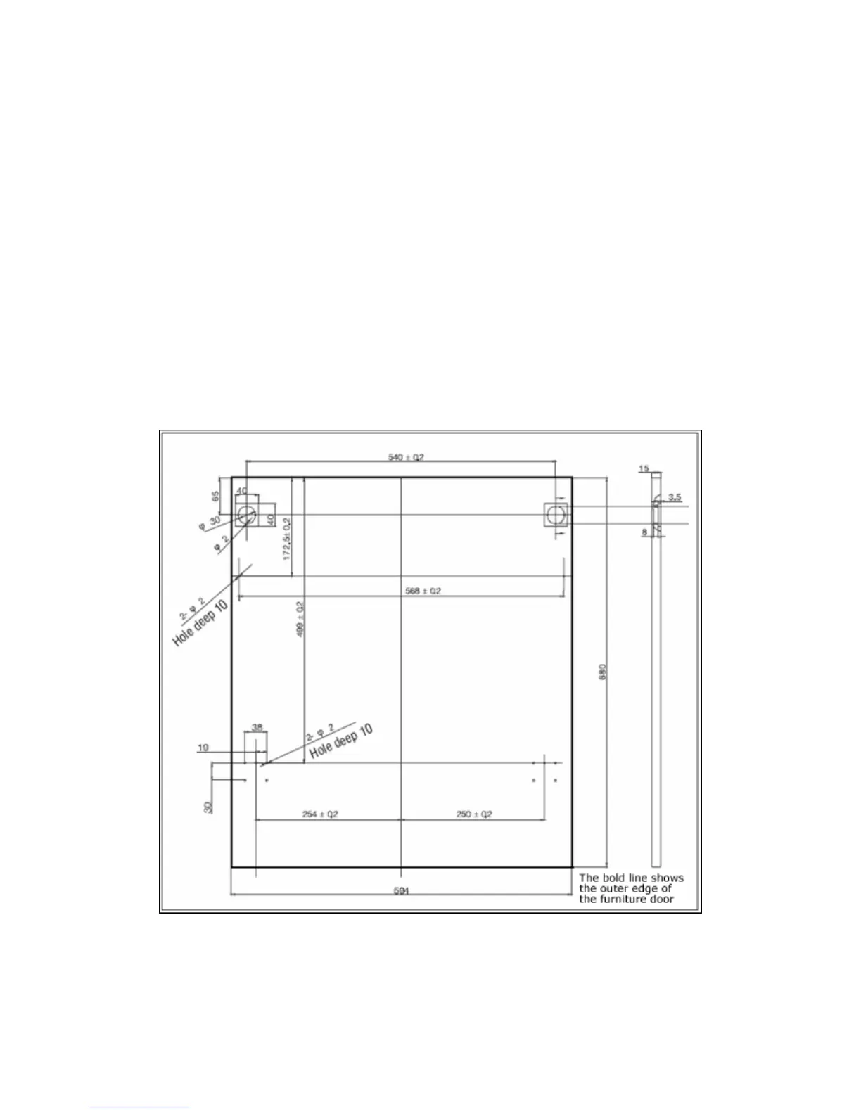
o The aperture that your dishwasher needs to be installed into
should resemble the one shown in the drawing on page 31.
o There should be less than a 5 mm gap between the top of the
dishwasher and the underneath of the worktop.
Installation stages
1. Preparing and connecting the furniture door.
2. Adjusting the tension of the door spring.
3. Connecting to the mains water supply
4. Connecting to the water outlet
5. Connecting to the power supply
6. Applying the condensation strip
7. Positioning the dishwasher
8. Levelling the dishwasher
9. Securing the dishwasher
reparing and connecting the furniture door
o re door is not supplied with the
P
IMPORTANT: The furnitu
appliance. You should purchase one to match with the rest of
your kitchen cabinets.

Related product manuals