EasyManua.ls Logo

Baumatic BDW16 - Page 28

Baumatic BDW16
40 pages
Print Icon
To Next Page IconTo Next Page
To Next Page IconTo Next Page
To Previous Page IconTo Previous Page
To Previous Page IconTo Previous Page
Loading...
BAUMATIC BDW16 dishwasher user manual
27
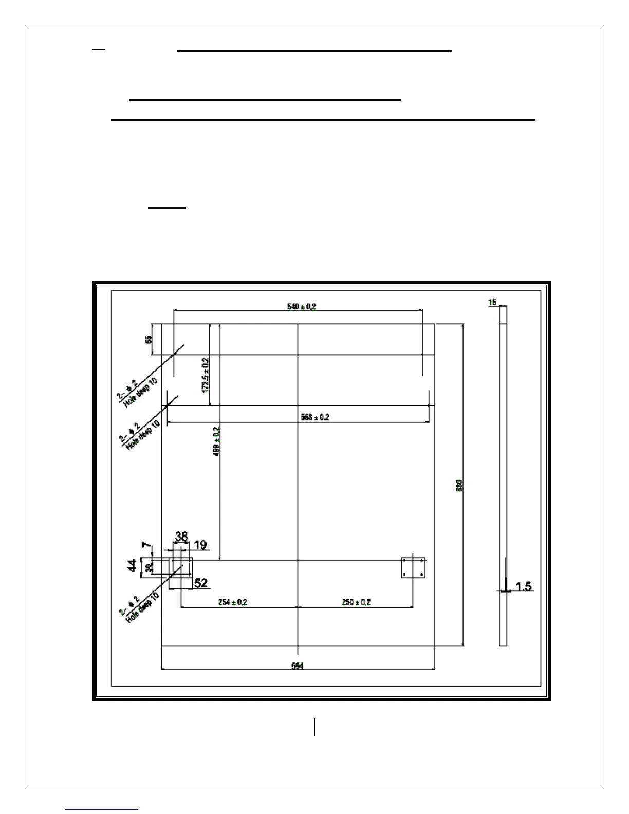
b) PLACING AND FITTING YOUR
DISHWASHER’S OPTIONAL FURNITURE DOOR
1 The furniture door (an optional accessory fitted to match
your kitchen décor available from your kitchen unit dealer)
can be attached to the front of the dishwasher according to
the following diagram. (Measurement is in millimetres):
NOTE: THE MAXIMUM WEIGHT OF THE DOOR IS 5.5 KILOGRAMS.
DO NOT INSTALL WITH SCREWS THROUGH THE DOOR ONLY.
ONLY USE THE 2 SCREW HOLES AND BRACKETS AVAILABLE.
FAILURE TO INSTALL DOOR CORRECTLY CAN CAUSE
PROBLEMS WITH THE DOOR / PERFORMANCE OF YOUR
APPLIANCE.
27
2

Related product manuals