EasyManua.ls Logo

Baumatic BDW16 - Installing the Furniture Door

Baumatic BDW16
40 pages
Print Icon
To Next Page IconTo Next Page
To Next Page IconTo Next Page
To Previous Page IconTo Previous Page
To Previous Page IconTo Previous Page
Loading...
BAUMATIC BDW16 dishwasher user manual
28
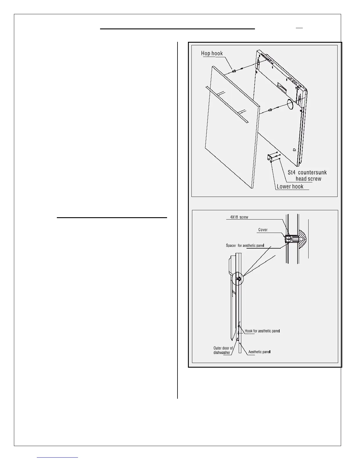
Install the hook on the
furniture door and put the
hook into the slot of the
outer door of the
dishwasher
(see top figure).
After positioning the panel,
fix it onto the outer door
using screws and bolts
(see
bottom figure).
Installing the furniture door
NOTE: NAMED IN FIGURE AS AESTHETIC
PANEL
(PICTURED ON RIGHT)
1. Take away the
cover.
2. Affix the screw.
3. Replace the cover.
28

Related product manuals