EasyManua.ls Logo

Baxi Eco Compact - Page 46

Baxi Eco Compact
68 pages
Print Icon
To Next Page IconTo Next Page
To Next Page IconTo Next Page
To Previous Page IconTo Previous Page
To Previous Page IconTo Previous Page
Loading...
7110102.03 (1-06/13) 202
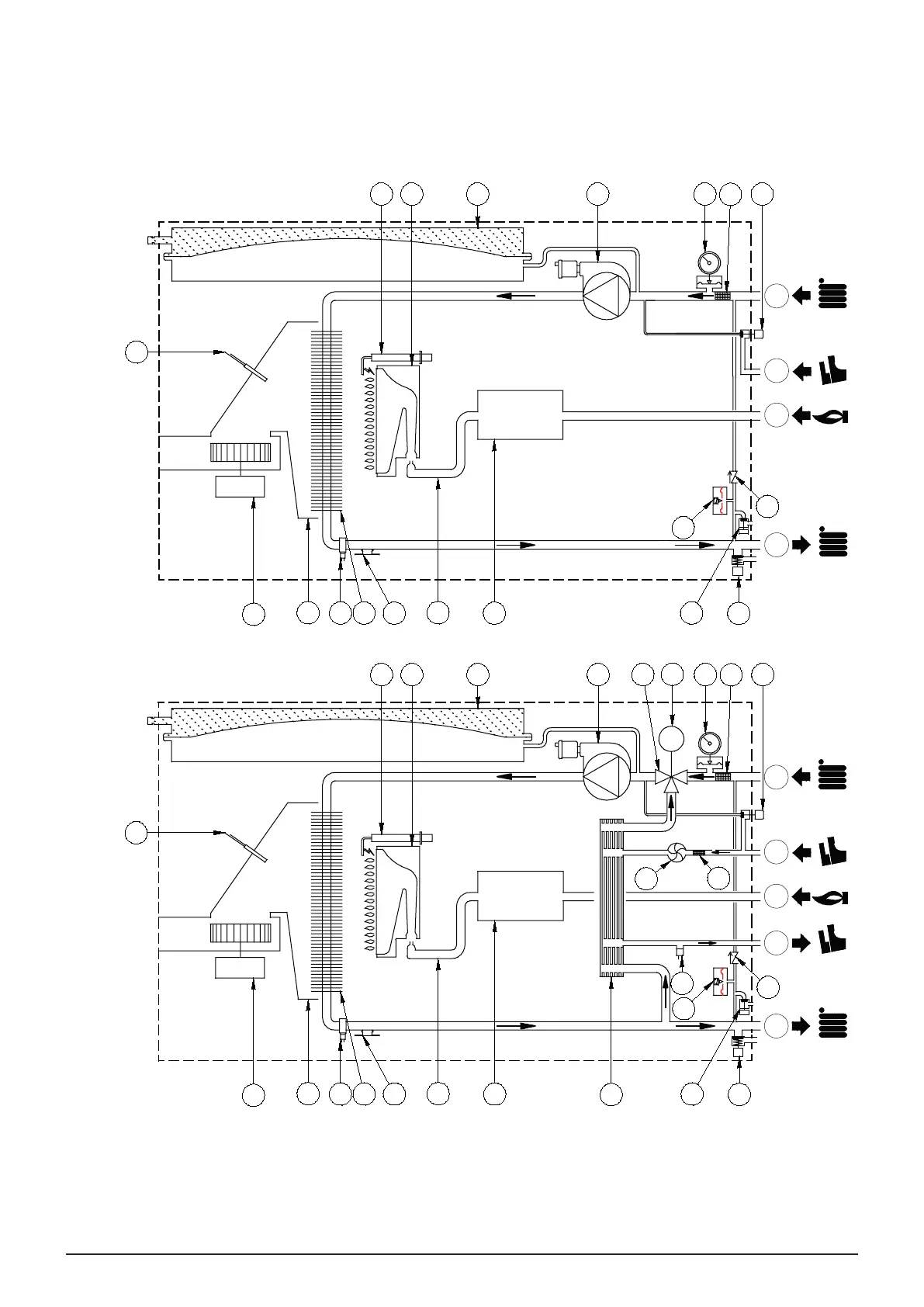
SECTION A
M
M
15
9
16
18
20
21
22
23
24
19
1
6
14
8
CG_2463
12
17
7
25
2
3
4
5
13
11
10
E
B
A
C
D
M
11
6
12
16
17
18
23
24
15
1
5
CG _2464
13
25
4
9
19
20
21
22
E
A
C
D
1.14F - 1.24F14F - 18F - 24F

Table of Contents

Related product manuals