EasyManua.ls Logo

BEKA BA328E - Display Backlight; Loop Powering the Backlight; Separately Powering the

Default Icon
39 pages
Print Icon
To Next Page IconTo Next Page
To Next Page IconTo Next Page
To Previous Page IconTo Previous Page
To Previous Page IconTo Previous Page
Loading...
25
9.4 Display backlight
The BA307E, BA327E, BA308E and BA328E loop
powered indicators can be supplied with a factory
fitted backlight that may be loop or separately
powered.
When loop powered the backlight produces green
background illumination enabling the display to be
read at night or in poor lighting conditions. No
additional power supply, intrinsic safety interface or
field wiring are required, but the indicator voltage
drop is increased. When separately powered the
backlight is brighter, but an additional intrinsic
safety interface and field wiring are required.
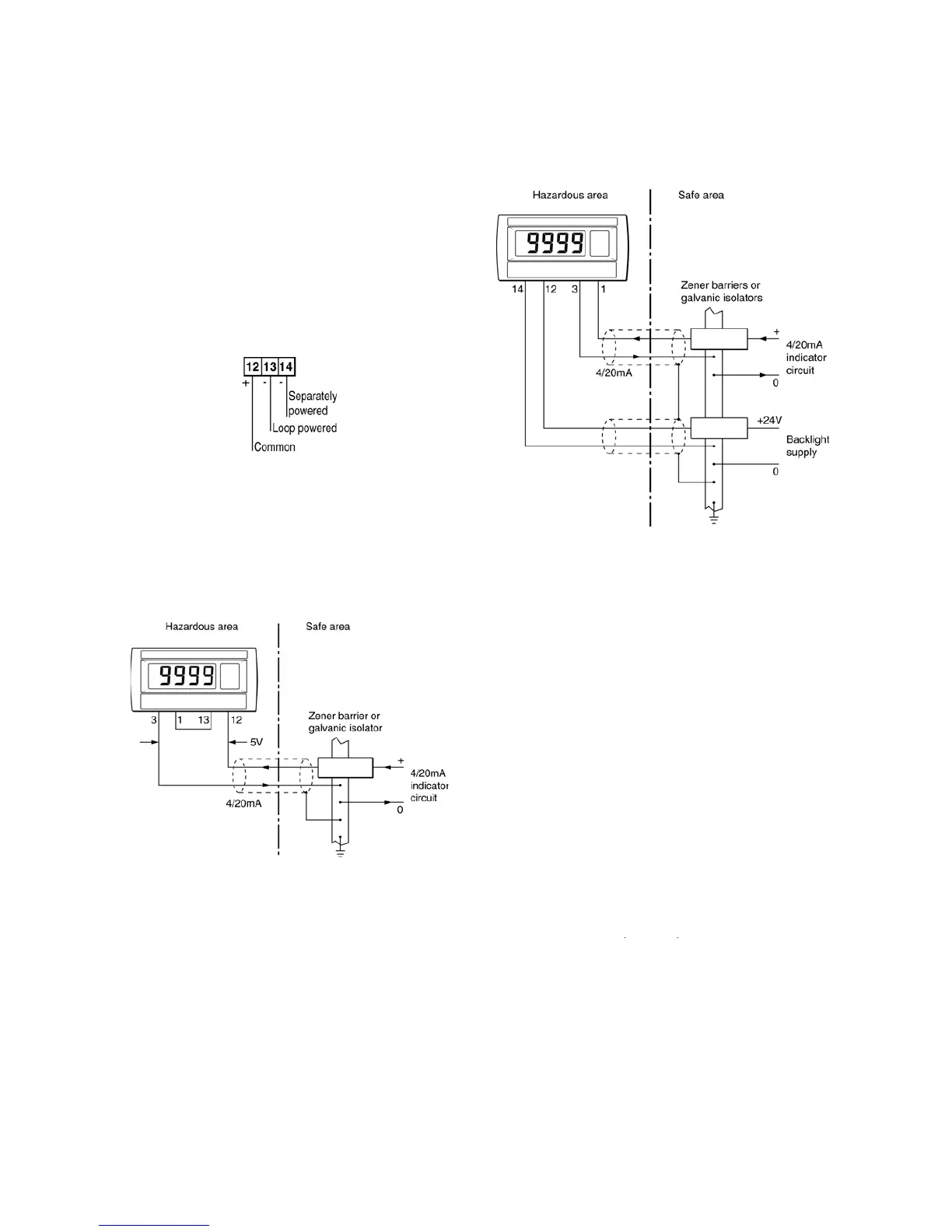
Fig 16 Terminals for optional backlight
9.4.1 Loop powering the backlight
The backlight is loop powered by connecting it in
series with the indicator 4/20mA input as shown in
Fig 17, which increases the maximum indicator
voltage drop from 1.2 to 5V.
Fig 17 Loop powered backlight
The input intrinsic safety parameters of the
combined indicator and backlight are the same as
for the indicator alone. The EC-Type Examination
Certificate states that for intrinsic safety
considerations, under fault conditions the output
voltage, current and power of the combined
indicator and backlight terminals 1 & 13 will not
exceed those specified by clause 5.7 of EN 60079-
11 for simple apparatus, which simplifies system
design and documentation.
Providing the increased voltage drop can be
tolerated, the intrinsic safety and system design
described in sections 3 and 4 of this manual
remain valid with the loop powered backlight.
9.4.2 Separately powering the backlight
The optional backlight may also be powered from a
separate safe area power supply via an intrinsically
safe interface as shown in Fig 18.
Fig 18 Separately powered backlight
When separately powered the backlight draws a
constant current when supply is equal to or greater
the minimum specified voltage. Below this supply
voltage the backlight continues to function but with
reduced brilliance.
Current Minimum voltage
BA307E & BA327E 22.5mA 9.0V
BA308E & BA328E 34.7mA 11.0V
Any certified Zener barrier or galvanic isolator may
be used, providing the output parameters do not
exceed:
Uo = 30V dc
Io = 200mA
Po = 0.84W
The internal capacitance Ci between terminals 12
& 14 should be subtracted from Co of the
intrinsically safe interface powering the backlight to
determine the maximum permissible cable
capacitance.
Ci = 13nF
Li = 8µH (Effectively 0)
Two separately powered BA307E or BA327E
indicator backlights may be connected in parallel to
a single channel 28V, 93mA Zener barrier or
galvanic isolator with no noticeable reduction in
brilliance on a 24V dc supply.

Other manuals for BEKA BA328E

Related product manuals