EasyManua.ls Logo

Belling SCBI60FP - 60 cm Installation Details

Belling SCBI60FP
40 pages
Print Icon
To Next Page IconTo Next Page
To Next Page IconTo Next Page
To Previous Page IconTo Previous Page
To Previous Page IconTo Previous Page
Loading...
13.010
INSTALLATION - 60CM
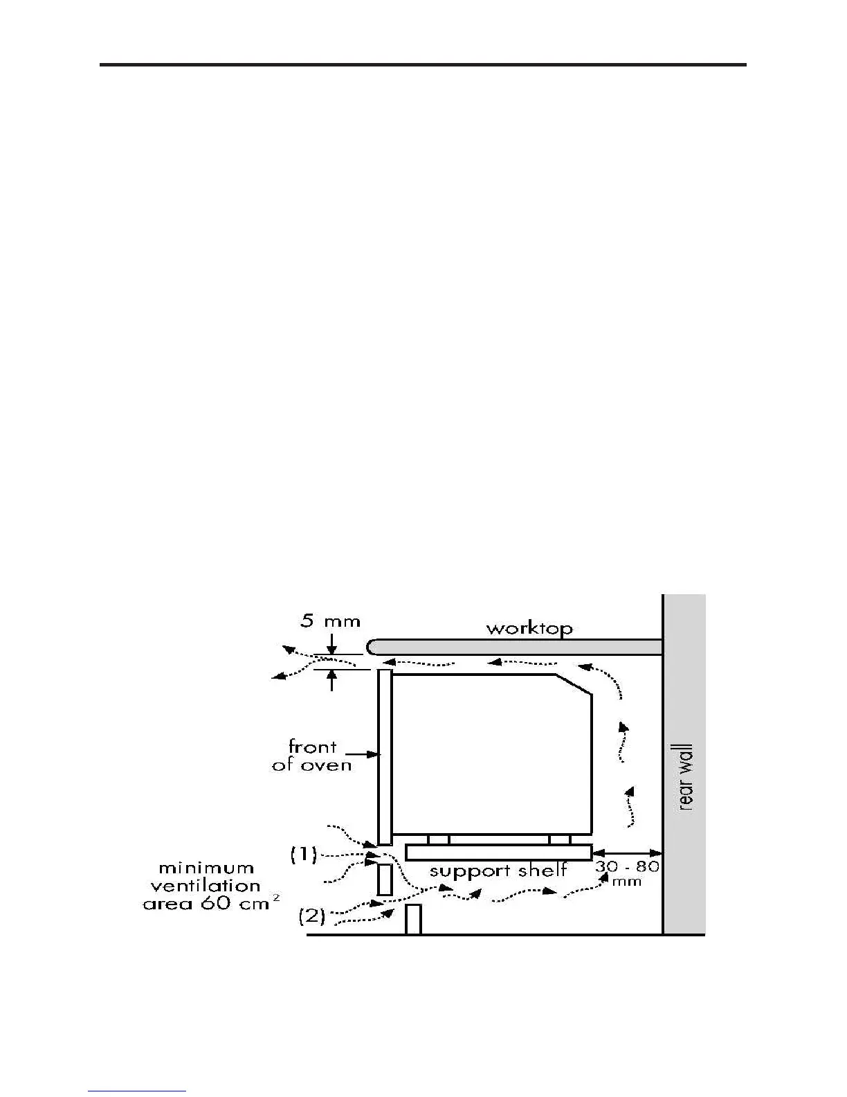
i) When installed in a typical 600mm deep
built in housing unit, the false back should
be removed from the housing unit to
provide the necessary depth for
installation.
ii) When the false back is removed, it is
normally the case that the support shelf
for the appliance leaves a gap between
the back edge and the wall of
approximately 80mm.
iii) If no gap occurs between the back
edge of the shelf and the wall behind the
unit, we recommend that a gap of at least
30mm is made by shortening the shelf.
iv) When installing the appliance below a
worktop, there must be a minimum
ventilation area of 60cm2 below the
appliance, in either area (1) or (2), as
indicated below. There must be a 5mm
gap between the front top edge of the
oven and the underside of the worktop.
Important:
Do not modify the outer panels
of this appliance in any way.
Ensure that you route all mains electrical
cables and exible tubing well clear of any
adjacent heat source, such as an oven,
grill or hob.
Ensure that all pipe work is of the correct
rating for both size and temperature.
Installing the appliance under a
worktop
Where the appliance is installed under
a worktop, with a hob installed above it,
the installation instructions for the hob
must be read in conjunction with these
instructions.

Related product manuals