EasyManua.ls Logo

BENDIX A-18 TRAILER ABS - Speed Sensor Troubleshooting

BENDIX A-18 TRAILER ABS
40 pages
Print Icon
To Next Page IconTo Next Page
To Next Page IconTo Next Page
To Previous Page IconTo Previous Page
To Previous Page IconTo Previous Page
Loading...
28
X2 Black
Coding B
12
1
11
2
10
3
9
4
8
5
7
6
X1 Grey
Coding A
12
1
11
2
10
3
9
4
8
5
7
6
X1 Green
Coding C
12
1
11
2
10
3
9
4
8
5
7
6
BASIC
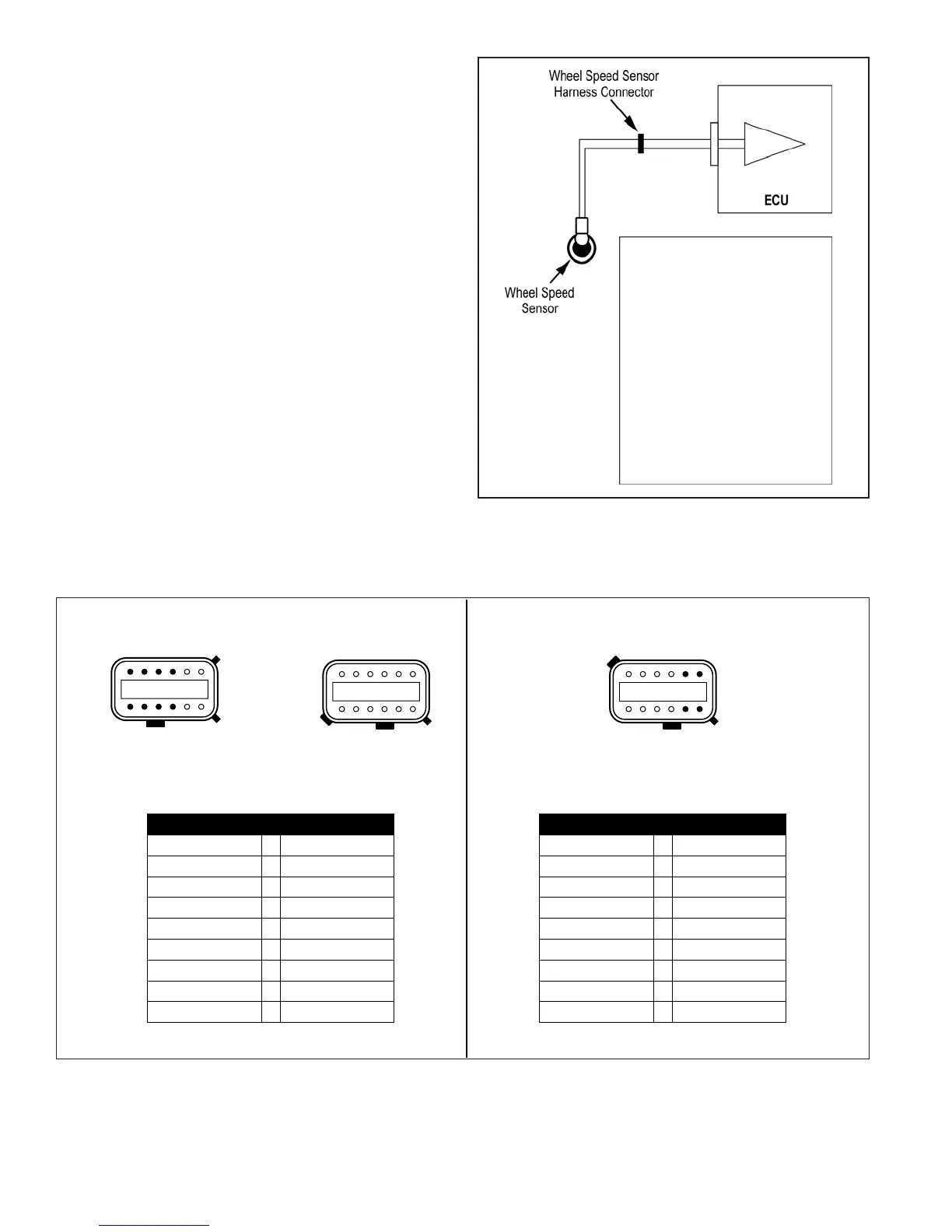
Harness Connector Pin Circuit Description
X1 Green (Coding C) 1 Sensor A+
X1 Green (Coding C) 2 Sensor A-
X1 Green (Coding C) 11 Sensor B-
X1 Green (Coding C) 12 Sensor B+
STANDARD
Harness Connector Pin Circuit Description
X2 Black (Coding B) 3 Sensor A-
X2 Black (Coding B) 4 Sensor A+
X2 Black (Coding B) 5 Sensor B-
X2 Black (Coding B) 6 Sensor B+
X2 Black (Coding B) 7 Sensor C-
X2 Black (Coding B) 8 Sensor C+
X2 Black (Coding B) 9 Sensor D-
X2 Black (Coding B) 10 Sensor D+
FIGURE 34 - Sensor Pin Identification
FIGURE 33 - Typical Wheel Speed Sensor Circuit
Speed Sensor Troubleshooting
Follow the steps listed below to locate and correct sensor-
related ABS diagnostic trouble codes.
1. Access active diagnostic trouble code(s) using the blink
code procedure, the hand-held tester or ServiceRanger
software.
2. Look up the code description, the possible causes and
the repair procedures provided in this section.
3. Perform the recommended repair procedures.
4. After the repairs are completed, clear all codes and
check for any additional codes.
Note: Drive the vehicle. The indicator lamp will remain
on until proper sensor output is detected, even though the
diagnostic trouble code has been cleared.
Speed Sensor Resisitance Test
The correct resistance for the
speed sensor circuit is between
1500 ohms and 2500 Ohms.
Measure resistance at the wheel
location to check the speed sensor.
Measure resistance at the
appropriate ECU harness
connector pins to check the cable
and speed sensor.
Note: Refer to the chart for pin
identification.

Related product manuals