EasyManua.ls Logo

BendPak PCL-18B - Page 10

BendPak PCL-18B
48 pages
Print Icon
To Next Page IconTo Next Page
To Next Page IconTo Next Page
To Previous Page IconTo Previous Page
To Previous Page IconTo Previous Page
Loading...
10
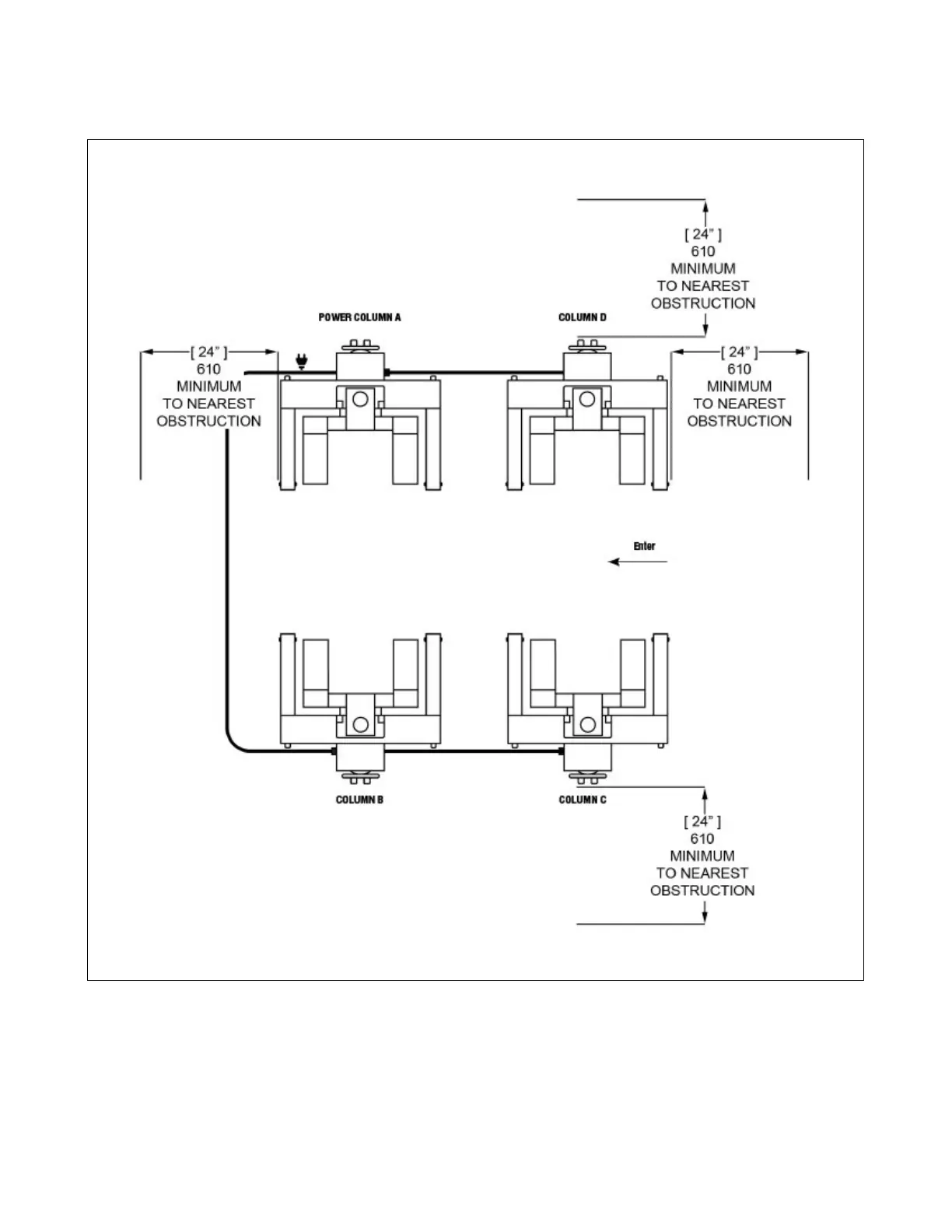
CLEARANCES
LIFT HEIGHT CLEARANCE NOTE: There must be a 148” MIN distance from ground to the nearest
overhead obstruction to clear the lift at full rise.