EasyManua.ls Logo

BENSON VRBD 250 - Wiring Diagrams

BENSON VRBD 250
38 pages
Print Icon
To Next Page IconTo Next Page
To Next Page IconTo Next Page
To Previous Page IconTo Previous Page
To Previous Page IconTo Previous Page
Loading...
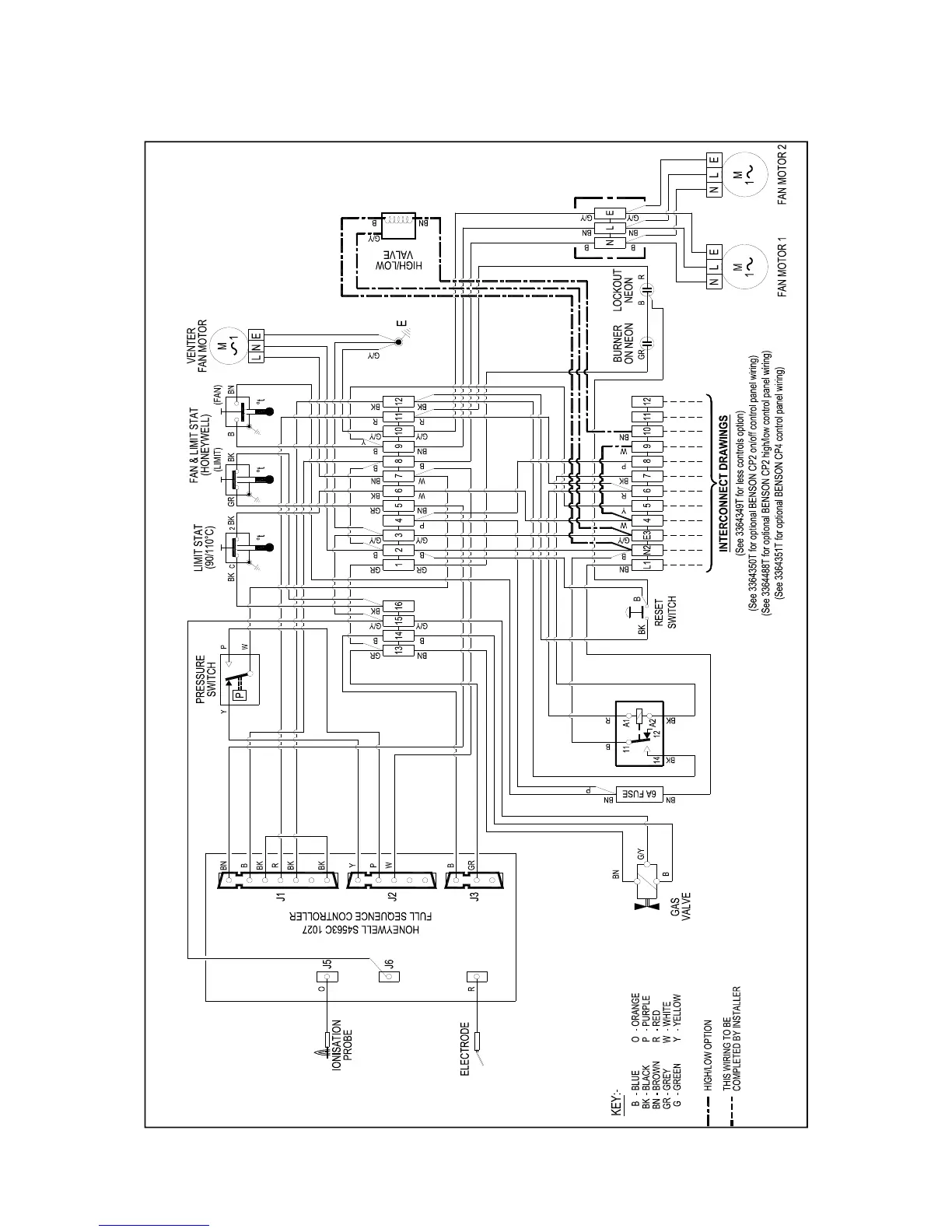
Wiring Diagrams VR 250-330 Auto Ignition
WARNING NEUTRAL RESET

Related product manuals