EasyManua.ls Logo

BENSON VRBD 250 - Page 29

BENSON VRBD 250
38 pages
Print Icon
To Next Page IconTo Next Page
To Next Page IconTo Next Page
To Previous Page IconTo Previous Page
To Previous Page IconTo Previous Page
Loading...
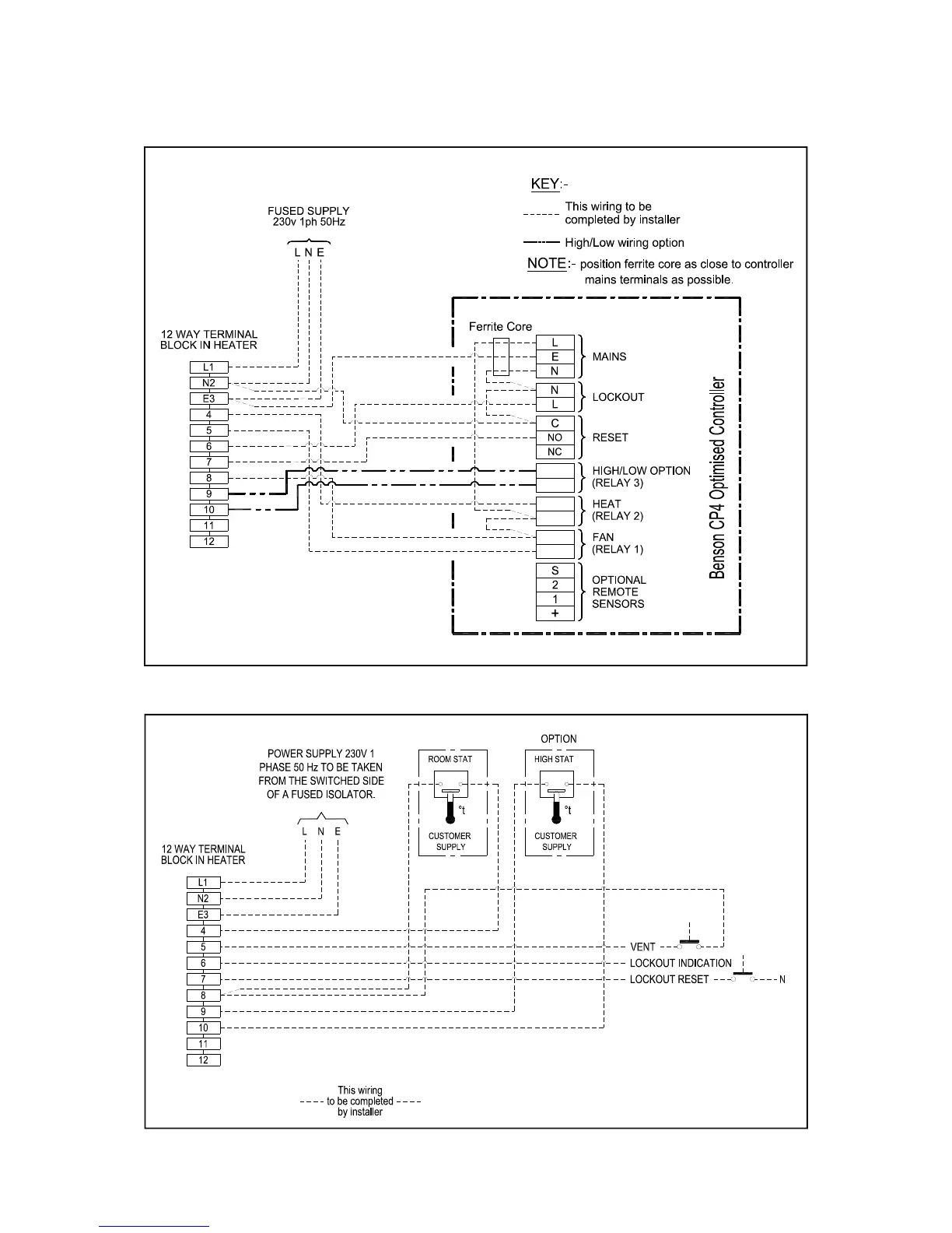
CP4 Controller Connections 33-64-351T
Less Controls Connections 33-64-349T
WARNING NEUTRAL RESET
WARNING NEUTRAL RESET

Related product manuals