EasyManua.ls Logo

BERGHOF EC1000 - Identification; Module View and Pin Assignment

BERGHOF EC1000
32 pages
Print Icon
To Next Page IconTo Next Page
To Next Page IconTo Next Page
To Previous Page IconTo Previous Page
To Previous Page IconTo Previous Page
Loading...
USER MANUAL 1.7 | EC1000
Berghof Automation GmbH | Harretstrasse 1 | 72800 Eningen | www.berghof.com
EC1000_HB_en_2D1652008ZD00.docx | 2VF100179FE06.docx
16
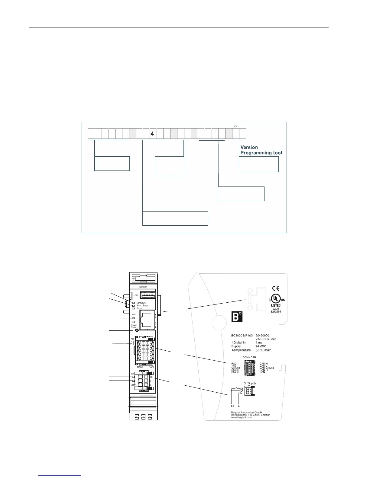
2.4. Identification
Product: Ethernet-Controller, Type EC1000
Identification code
The features of the Ethernet-Controller (see ‘Annex, Nameplate’) can be itemised according to the
identification code.
2VF100582DG00.cdr
2.5. Module view and pin assignment
2VF100515DG02.vsd
E
C 1
0 0 0
M
P
00
1 2
3
4
5 6
7
8 9 10
11 12
13
14
15
1 1 1
3
0 0
3V
16
17
18
19 20 21
23
00 = part
equipping
variant
MP400 = Power PC 400 MHz
V3 = CODESYS
Version 3.x
1131 = CODESYS
controller
EC = Ethernet-
Controller
Product
Programming tool
Processor type
Variant
EtherCAT
USB
LAN
EtherCAT
green/red
Run/Stop
red/green/yellow
Error red
LAN acitvity
Stop/Reset
Button
DI yellow
Power green
SD Card Slot
COM /
CAN
DI /
Supply
204900001

Related product manuals