EasyManua.ls Logo

BERGHOF EC1000 - Block Diagram

BERGHOF EC1000
32 pages
Print Icon
To Next Page IconTo Next Page
To Next Page IconTo Next Page
To Previous Page IconTo Previous Page
To Previous Page IconTo Previous Page
Loading...
USER MANUAL 1.7 | EC1000
Berghof Automation GmbH | Harretstrasse 1 | 72800 Eningen | www.berghof.com
2VF100179FE06.docx | EC1000_HB_en_2D1652008ZD00.docx
15
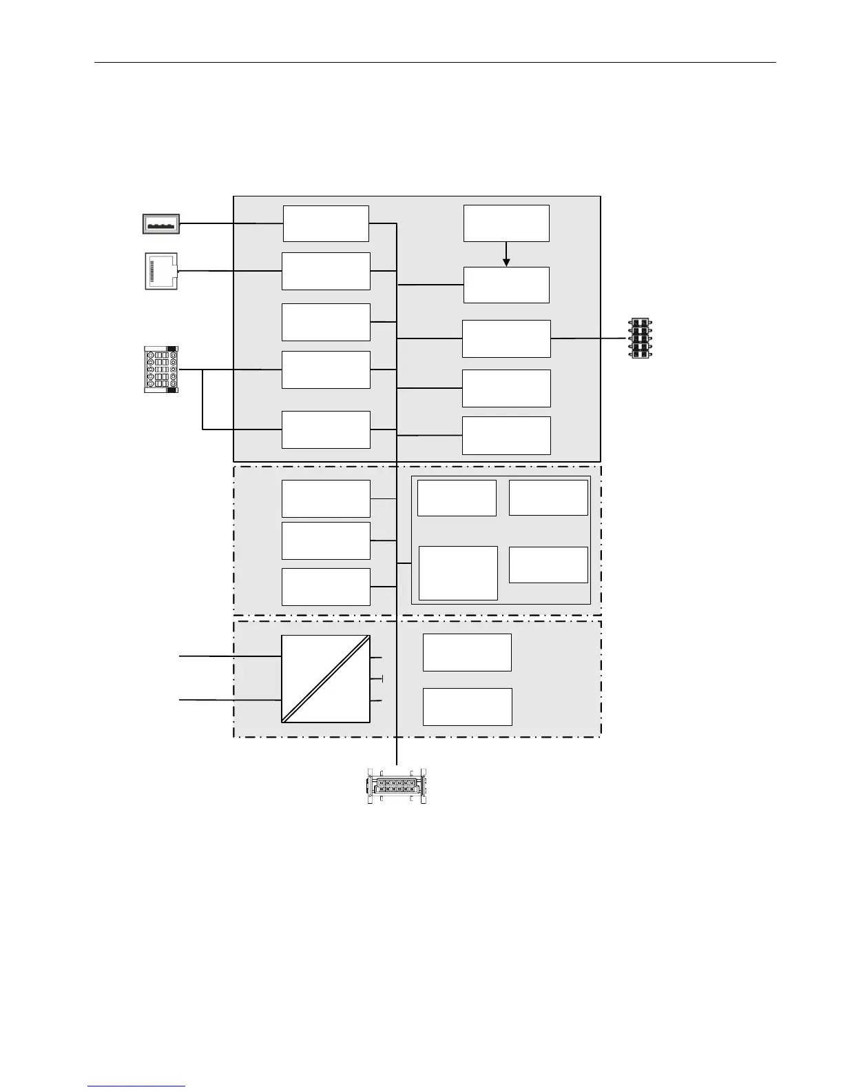
2.3. Block diagram
2VF100514DG01.vsd
Flash
RAM
Ethernet-
Controller
DC
DC
L +
L -
USB
Transceiver
Ethernet-
Transceiver
CAN
Transceiver
SIO
Transceiver
S
0
+
Status-LED
EtherCAT-
Transceiver
USB
LAN
COM /
CAN
+5 V
+3,3 V
GND
Ether
CAT
CAN
SIO
CPU
EtherCAT
Ethernet /
COM / CAN
Accu
RTC
Serial
EEPROM
Retain memory
Voltage control
Energy reserve

Related product manuals