EasyManua.ls Logo

Berkeley B1-1/2XQBS-11 - Dimensions

Default Icon
15 pages
Print Icon
To Next Page IconTo Next Page
To Next Page IconTo Next Page
To Previous Page IconTo Previous Page
To Previous Page IconTo Previous Page
Loading...
Page 4 F00650
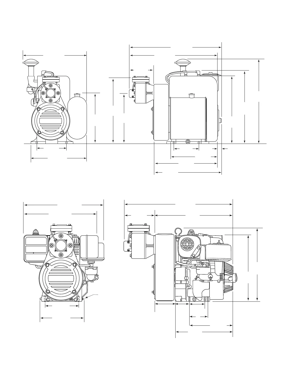
Dimensions
19.9687
(507)
16.4375
(417.5)
7.6875
(195.3)
10.3125
(258.8)
15.5
(393.7)
16.8125
(427)
6.7812
(172)
3.75
(95.3)
3.375
(85.7)
3.3125
(84.1)
4
(101.6)
9.8125
(249.2)
13.125
(333.4)
16.875
(428.7)
23.3437
(593)
Oil Drain
Both Sides
3039 0997
27.3125
(694)
28.9375
(735)
26.0937
(663)
20.2187
(513.6)
22.2812
(566)
15.562
(395.3)
21.25
(539.8)
22.875
(581)
6.7812
(172)
20.125
(511.1)
14
(255.6)
21.6875
(551)
14.8125
(276.2)
18.4375
(468.3)
10.625
(270)
8.625
(219)
1.625
(41.3)
3040 0997
Figure 1: Model B06172S Dimensions
Figure 2: Model B054728S Dimensions

Related product manuals