EasyManua.ls Logo

BERTHOLD TECHNOLOGIES LB4710-150 - Chapter 15. Technical Drawings; Nai Detector

Default Icon
227 pages
Print Icon
To Next Page IconTo Next Page
To Next Page IconTo Next Page
To Previous Page IconTo Previous Page
To Previous Page IconTo Previous Page
Loading...
Chapter 15 Technical Drawings
Mini-Switch LB 471
121
Chapter 15. Technical Drawings
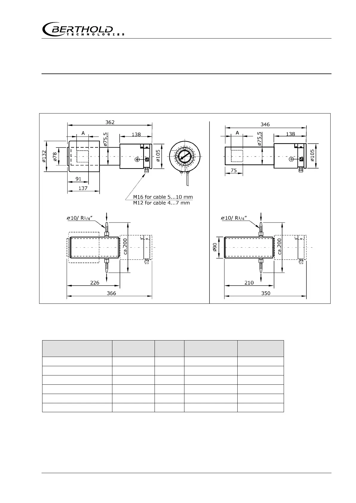
15.1 NaI Detector
with collimator
without collimator
Specifications in mm
Water conduit connections for water cooling:
Ø 10 mm (R
1
/
4
")
Maximum pressure 6 bar
Type
Crystal
Ex
Collimator
Weight
in kg approx.
LB 5401-01
25/25
5
LB 5401-02
40/35
5
LB 5401-03
50/50
X
18
LB 4401-01
25/25
X
5
LB 4401-02
40/35
X
5
LB 4401-03
50/50
X
X
18

Table of Contents

Related product manuals