EasyManua.ls Logo

Best K29 - Instalación de Los Soportes de Montaje

Best K29
44 pages
Print Icon
To Next Page IconTo Next Page
To Next Page IconTo Next Page
To Previous Page IconTo Previous Page
To Previous Page IconTo Previous Page
Loading...
- 35 -
CORONA DE
TECHO
CONDUCTO
REDONDO DE 6
PULG. (15.2 CM)
TUBO DE
HUMOS
DECORATIVO
CAMPANA
CORONA
DE PARED
CODO
REDONDO
DE 24 A 30 PULG. (61 A 76
CM) S0BRE LA
SUPERFICIE DE COCINADO
(Consulte "INSTALACIÓN
DEL SOPORTE DE
MONTAJE" para ver las
instrucciones de montaje)
ADAPTADOR
DE 6 PULG.
(15.2 CM)
BASTIDOR DETRÁS DE UN SOPORTE
TRANSVERSAL
CLOISON
SÈCHE
SOPORTE
TRANSVERSAL DE
MADERA DETRÁS DE
LA PLACA DE YESO
Nota: La distancia mínima de la campana sobre la superficie de la estufa no debe ser menor de
24 pulg. (61 cm). Se recomienda enfáticamente una distancia máxima de 31 pulg. (78.7 cm)
sobre la superficie de la estufa para la mejor captura de las impurezas resultantes del cocinado.
Las distancias mayores de 31 pulg. (78.7 cm) se dejan a criterio de la persona que hace la
instalación y del usuario; y si la altura del cielo raso y la longitud del tubo de humos lo permiten.
ALTURA
DEL
CIELO
RASO
8 PIES
(244 CM)
9 PIES
(274 CM)
DISTANCIA MAYOR DE 36 pulg. (90 CM) DE LA CAMPANA A LA
SUPERFICIE DE LA ESTUFA (VÉASE LA NOTA A CONTINUACIÓN)
31 pul.
UBICACIÓN DEL SOPORTE DE MONTAJE A MÁS DE 36 pulg.
(90 CM) SOBRE LA SUPERFICIE DE LA ESTUFA
34-1/4
pulg.
10 PIES
(305 CM)
35-1/4
pulg.
34-1/4
pulg.
35-1/4
pulg.
CON O SIN
CONDUCTO
CON CONDUCTO,
CON FEXTK23
CONFIGURACIÓN
CON O SIN
CONDUCTO
30 pul.29 pul.28 pul.27 pul.26 pul.25 pul.24 pul.
33-1/4
pulg.
32-1/4
pulg.
31-1/4
pulg.
30-1/4
pulg.
29-1/4
pulg.
28-1/4
pulg.
INSTALACIÓN DEL PROTECTOR CONTRA SALPICADURAS
OPCIONAL
Si se usa el protector contra salpicaduras Modelo
BSK6 opcional, instálelo en la pared acabada. Fije
los soportes de montaje de la campana en el pro-
tector contra salpicaduras y omita el bastidor de la
pared que se describe abajo.
INSTALACIÓN DEL SISTEMA DE
CONDUCTOS
SÓLO CONFIGURACIÓN CON CONDUCTO
NOTA: Para reducir el riesgo de incendio, use
solamente conductos metálicos.
1. Decida dónde instalará el conducto entre la
campana y el exterior.
2. Un conducto recto y corto permitirá que la
campana funcione más eficientemente.
3. Los tramos largos de conductos, codos y
transiciones reducirán el rendimiento de la
campana. Use tan pocos de ellos como sea posible.
4. Instale una corona de techo o una corona de pared. Conecte un conducto metálico
Redondo de 6 pulg. (15.2 cm) en la corona y trabaje hacia atrás, hacia la ubicación de la
campana. Use cinta para conductos para sellar
las uniones entre las secciones de conductos.
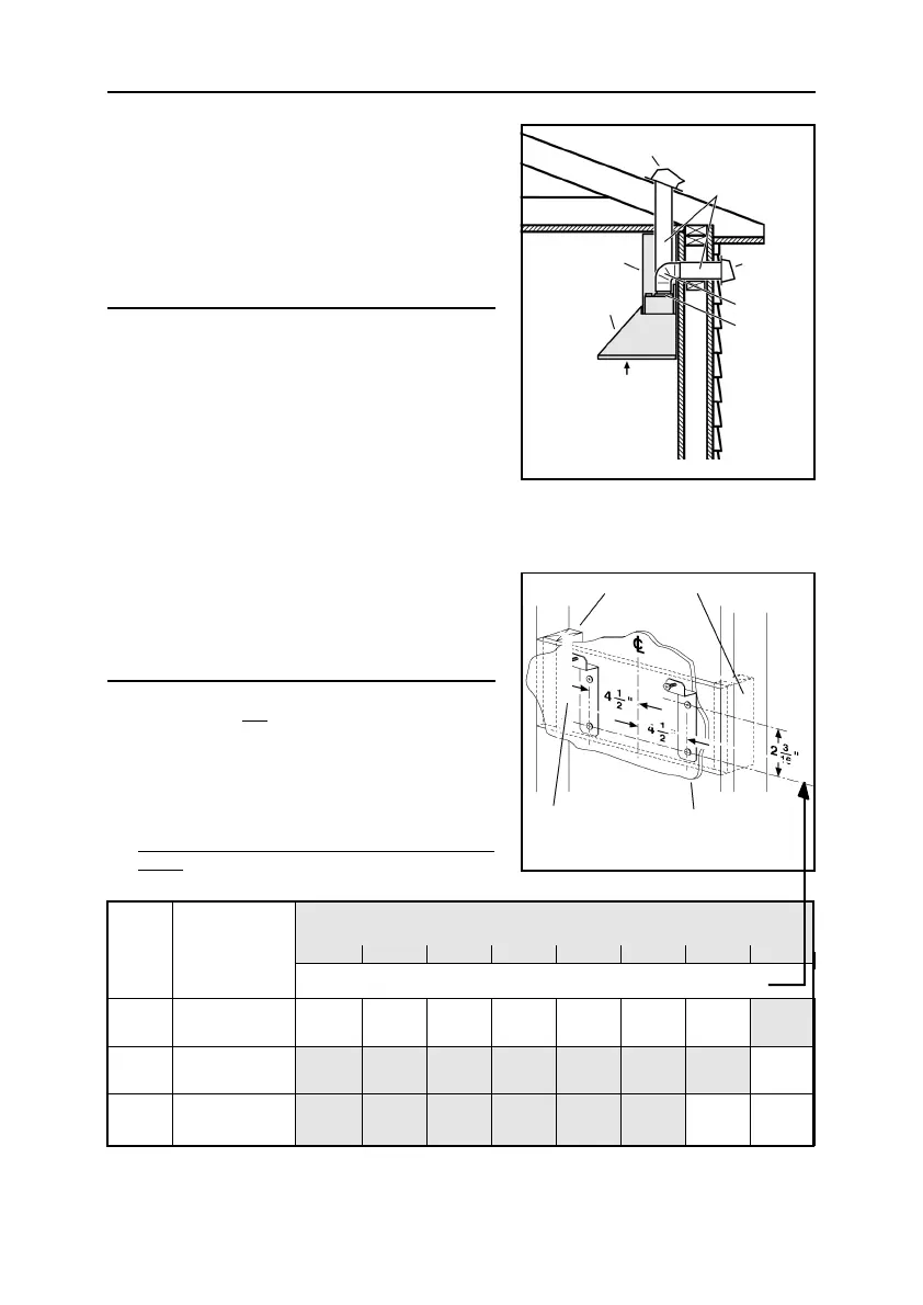
INSTALACIÓN DE LOS
SOPORTES DE MONTAJE
1. Construya un bastidor de madera en la pared
que quede al
ras de la superficie interior de los
montantes de la pared. Asegúrese de que:
a) el bastidor esté centrado en el lugar de la
instalación.
b) la altura del bastidor permita fijar los
soportes de montaje en el bastidor dentro
de las dimensiones mostradas.
2.
Después de que se termine la superficie de la
pared fije los soportes de montaje en el bastidor
usando las dimensiones mostradas.

Related product manuals