EasyManua.ls Logo

Bio Bronpi HYDROBOX - Page 144

Bio Bronpi HYDROBOX
Print Icon
To Next Page IconTo Next Page
To Next Page IconTo Next Page
To Previous Page IconTo Previous Page
To Previous Page IconTo Previous Page
Loading...
143
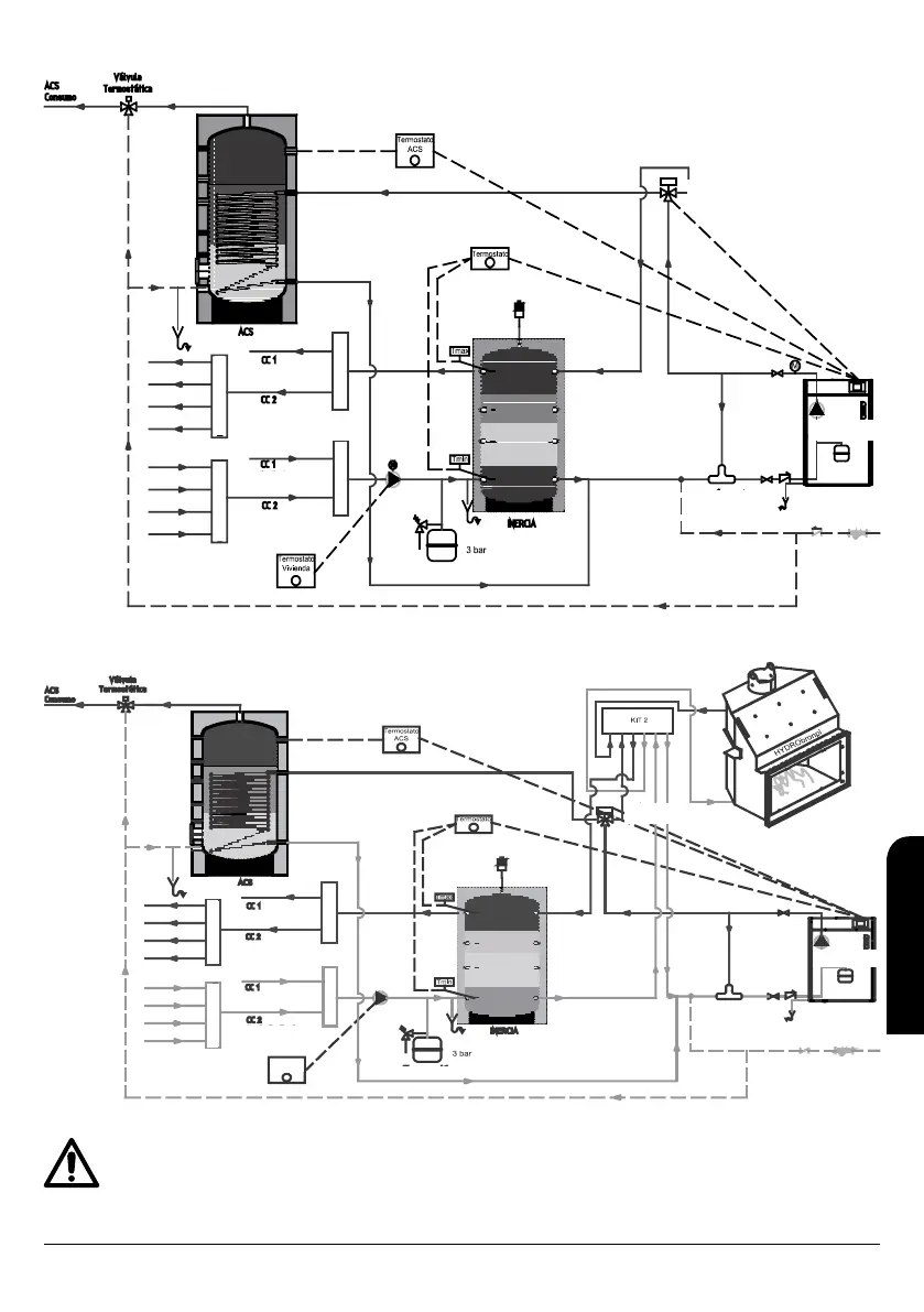
Caldaia + Serbatoio di Inerzia + Serbatoio di ACS + Circuito di Radiatori / Circuito di Riscaldamento a Pavimento
Presa generale
Colettore risc. a pavimento
Colettore risc. a pavimento
Radiatori
Radiatori
Riscaldamento
a Pavimento
Riscaldamento
a Pavimento
Espansione
COLETTORE FREDDO
COLETTORE CALDO
Valvola
deviatrice
Valvola
anticondensa
Presa
generale
Circolatore e vaso di
espansione inclusi
Caldaia + Caldaia Hydrobronpi + Serbatoio di Inerzia + Serbatoio di ACS + Circuito di Radiatori / Circuito di Riscaldamento a Pavimento
Colettore risc.
a pavimento
Colettore risc.
a pavimento
COLETTORE CALDO
COLETTORE FREDDO
Radiatori
Radiatori
Riscaldamento
a Pavimento
Riscaldamento
a Pavimento
Termostato
casa
Presa generale
Espansione
Valvola
deviatrice
Valvola
anticondensa
Presa
generale
Circolatore e vaso di
espansione inclusi
È obbligatorio che, per la conformità dell'avviamento della caldaia dal SAT, l'impianto possiede una valvola di elevazione della
temperatura di ritorno del circuito idraulico (valvola anticondensazione) per evitare la condensazione all'interno della camera di
combustione. Questa valvola è disponibile nello stesso distributore Bronpi dove è stato acquistata la caldaia.
IT
ISTRUZIONI DI INSTALLAZIONE,USO E MANUTENZIONE HYDROBOX, HYDROTEX E HYDROCONFORT

Table of Contents