EasyManua.ls Logo

Bio Bronpi HYDROBOX - Page 143

Bio Bronpi HYDROBOX
Print Icon
To Next Page IconTo Next Page
To Next Page IconTo Next Page
To Previous Page IconTo Previous Page
To Previous Page IconTo Previous Page
Loading...
142
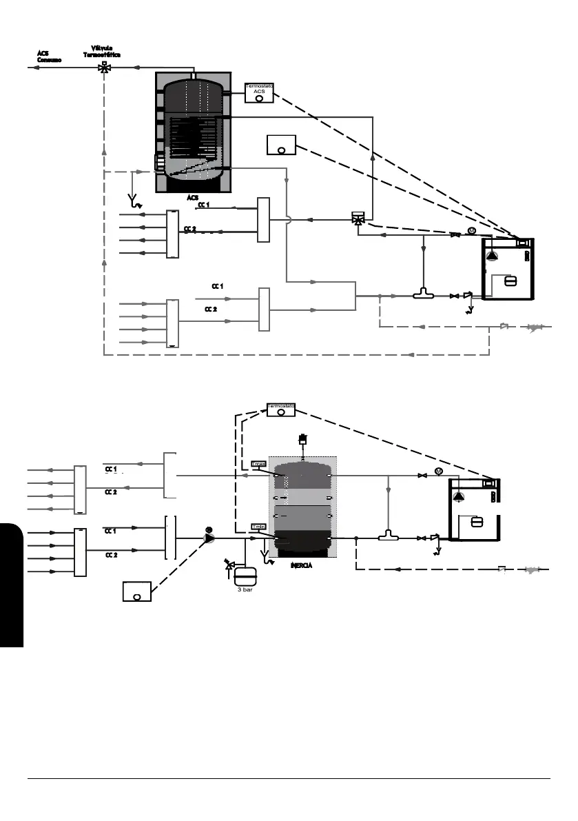
Caldaia + Serbatoio di ACS + Circuito di Radiatori / Circuito di Riscaldamento a Pavimento
Termostato
casa
Piso radiante
Valvola
deviatrice
Radiatori
Riscaldamento a Pavimento
Colettore risc.
a pavimento
Colettore risc.
a pavimento
Radiatori
Riscaldamento a Pavimento
COLETTORE
FREDDO
COLETTORE
CALDO
Presa generale
Circolatore e vaso di
espansione inclusi
Valvola
anticondensa
Presa
generale
Caldaia + Serbatoio di Inerzia + Circuito di Radiatori / Circuito di Riscaldamento a Pavimento
Colettore risc.
a pavimento
Colettore risc.
a pavimento
Radiatori
Riscaldamento a
Pavimento
Radiatori
Riscaldamento a
Pavimento
Termostato
casa
COLETTORE CALDO
COLETTORE FREDDO
Espansione
Valvola anticondensa
Circolatore e vaso di
espansione inclusi
Presa
generale
IT
ISTRUZIONI DI INSTALLAZIONE,USO E MANUTENZIONE HYDROBOX, HYDROTEX E HYDROCONFORT

Table of Contents