EasyManua.ls Logo

BIRO 3334SS - Page 19

BIRO 3334SS
52 pages
Print Icon
To Next Page IconTo Next Page
To Next Page IconTo Next Page
To Previous Page IconTo Previous Page
To Previous Page IconTo Previous Page
Loading...
16
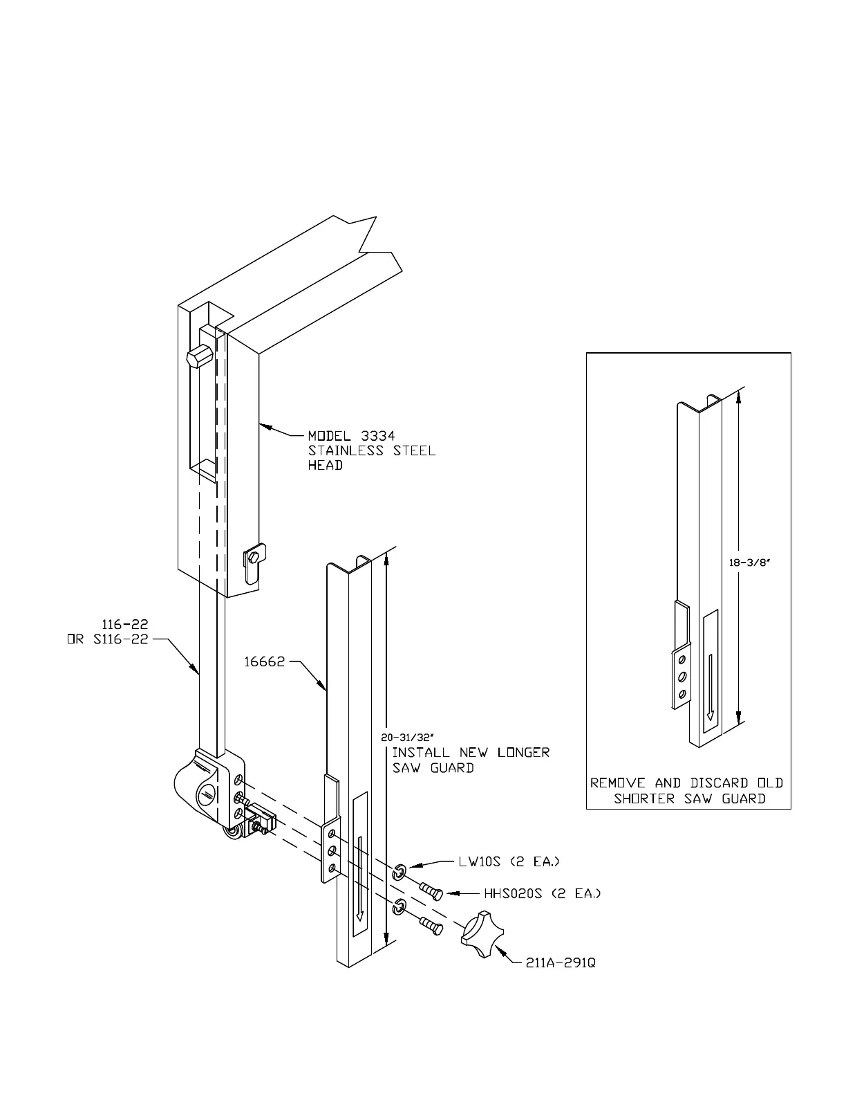
LONGER SAW GUARD KIT
Item No. 16662K
This longer guard is for replacement on existing saws. Install the new guard
with the ¼” diameter screws supplied with the Saw Guard Kit, Item No. 16662K.
NEW
OLD

Related product manuals