EasyManua.ls Logo

Bitzer OSNA8571-K - Page 103

Bitzer OSNA8571-K
108 pages
Print Icon
To Next Page IconTo Next Page
To Next Page IconTo Next Page
To Previous Page IconTo Previous Page
To Previous Page IconTo Previous Page
Loading...
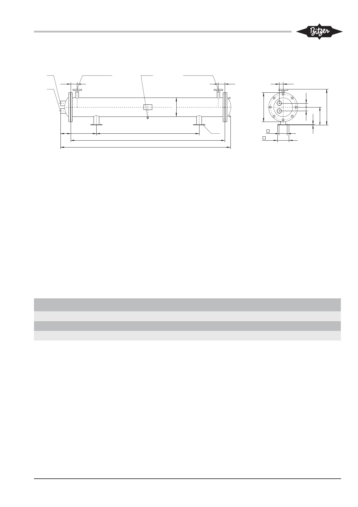
103SH-510-1
Maßzeichnung
Anschluss-Positionen
1 Kältemittel-Eintritt
2 Kältemittel-Austritt
3 Kühlmedium-Eintritt
4 Kühlmedium-Austritt
5–
6–
7–
8–
9 Ölablass
Anschluss 1 und 2:
Flansch nach EN 1092-1711 und Nut
nach DIN 2512
Abmessungen
Dimensional drawing
Connection positions
1 Refrigerant inlet
2 Refrigerant outlet
3 Coolant inlet
4 Coolant outlet
5–
6–
7–
8–
9 Oil drain
Connection 1 and 2:
Flange according to EN 1092-1711
and groove according to DIN 2512
Dimensions
Croquis coté
Position des raccords
1 Entrée de fluide frigorigène
2 Sortie de fluide frigorigène
3 Entrée de fluide caloporteur
4 Sortie de fluide caloporteur
5–
6–
7–
8–
9 Vidange d'huile
Raccord 1 et 2:
Bride suivant EN 1092-1711 et rainure
suivant DIN 2512
Dimensions
Ø D
7 5
7 5
A
A 1
HI
X
Ø 1 5
4
3
2
D N 2 5 / P N 4 0 N
9
R 1 / 2
E 1
B
EE
8
S
C
1 3 5
9 5
1
D N 2 5 / P N 4 0 N
AA1B CØ DEE1H I S X 3 4
OW160A(C) 1650 1500 220 300 114 30 1000 250 150 85 R 1 R 1
OW290A(C) 1668 1500 220 340 140 35 1000 250 170 100 R 1 1/2 R 1 1/2
OW860A(C) 1985 1800 340 420 220 45 45 1200 300 210 120 R 2 R 2

Table of Contents

Related product manuals