EasyManua.ls Logo

Bitzer OSNA8571-K - 11 Dimensional Drawings; Oil Heater and Oil Thermostat Mounting; Oil Level Switch Mounting

Bitzer OSNA8571-K
108 pages
Print Icon
To Next Page IconTo Next Page
To Next Page IconTo Next Page
To Previous Page IconTo Previous Page
To Previous Page IconTo Previous Page
Loading...
107SH-510-1
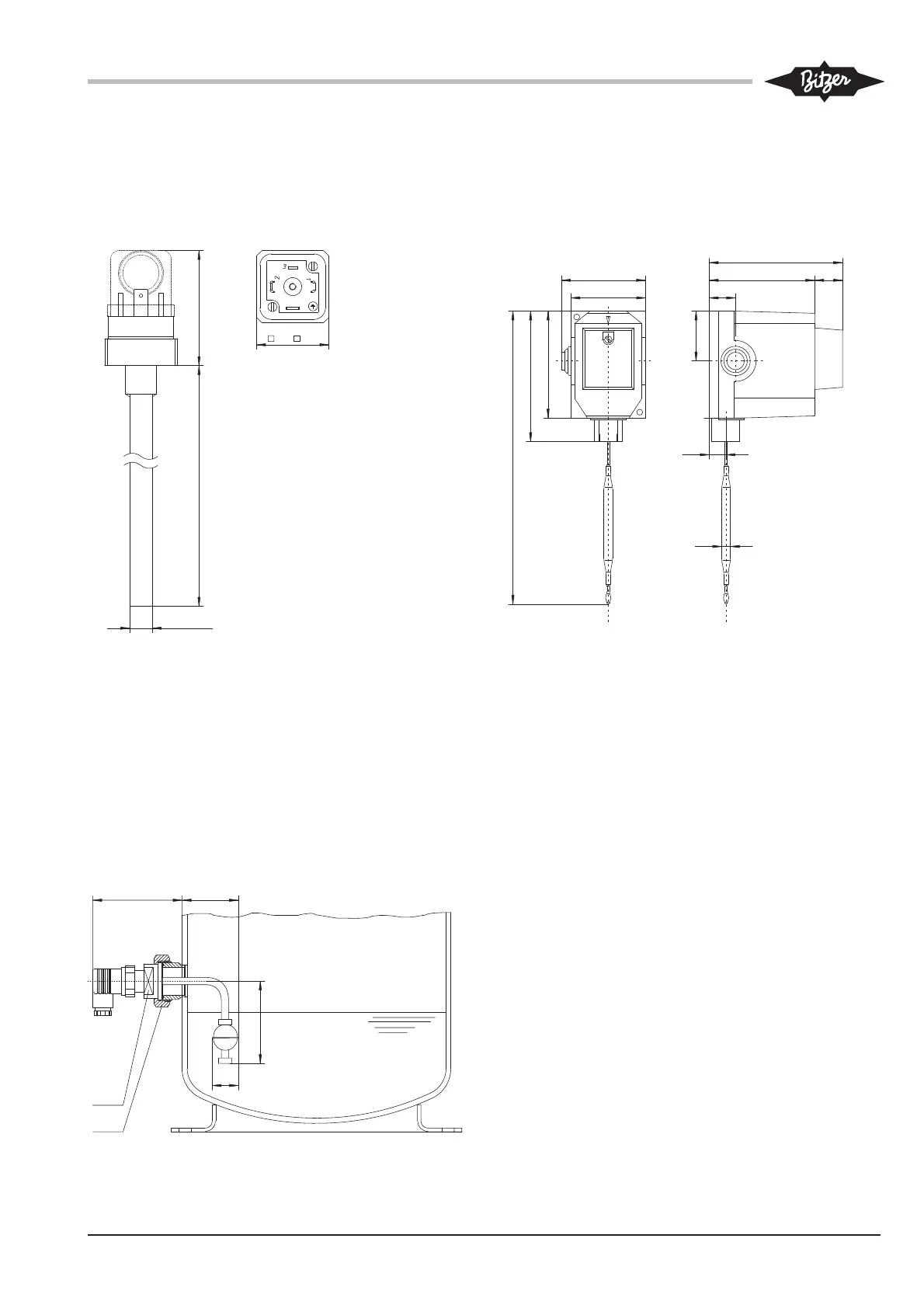
Dimensional drawings
Accessories for oil separator
Croquis cotés
Accessoires pour séparateur d'huile
Maßzeichnungen
Zubehör für Ölabscheider
1 0 0 8 7
9 0
2 9
S W 5 0
S W 2 4
7 3
2 0 0
5 8
5 1
8 9
1 8
9 1
7 2 1 9
3 4
1 2
Ø 6
2 4 8 ( 2 0 3 ) 5 1 ( 5 4 )
Ø 1 0 ( Ø 1 9 )
3 2 ( 3 5 )
Ölniveauwächter
Oil level switch
Contrôleur de niveau d'huile
Ölheizung
Oil heater
Chauffage d'huile
Ölthermostat
Oil thermostat
Thermostat d'huile
Monter chauffage d'huile ou thermostat
d'huile:
Introduire totalement la résistance ou
l
'
élément de sonde dans le doigt de
gant
pre-assemblé.
Fixer avec la vis à six-pans creux.
Ölheizung und Ölthermostat montie-
ren:
Heizstab oder Fühlerelement ganz
in vormontierte Tauchhülse ein-
stecken.
Mit der Innensechskant-Schraube
befestigen.
Mounting the oil heater and the oil
thermostat:
Insert heating or sensor element
completely into pre-mounted heater
sleeve.
Fix it with hexagon socket screw.
Ölniveauwächter an Stelle des
Schauglases montieren.
Mount the oil level switch
instead of the sight glass.
Monter
le contrôleur
de niveau
d'huile à la place du voyant.
Abmessungen der OA25012-
Heizungen in Klammern
Dimensions of the OA25012
heaters in brackets
Dimensions des chauffages du
OA25012 entre paranthèses

Table of Contents

Related product manuals