EasyManua.ls Logo

Bitzer OSNA8571-K - Page 43

Bitzer OSNA8571-K
108 pages
Print Icon
To Next Page IconTo Next Page
To Next Page IconTo Next Page
To Previous Page IconTo Previous Page
To Previous Page IconTo Previous Page
Loading...
43SH-510-1
P R V
T CL Z
T C
1
2
3
4
T C
t
0
< t
0
>
5
N H
3
N H
3
Abb. 18 Anwendungsbeispiel:
Parallelverbund mit gemeinsamem
Ölabscheider, wasser-gekühltem
Ölkühler und Ölpumpe, Legende
Seite 44
Fig. 18 Application example:
Parallel compounding with com-
mon oil separator, water cooled oil
cooler and oil pump, legend page
44
T CL Z
1
2
3
9
T C T C
8
5
N H
3
Fig. 18 Exemple d'application:
Fonctionnement en parallèle avec
séparateur d'huile, refroidisseur d'huile
à eau et pompe à huile communs,
légende page 44
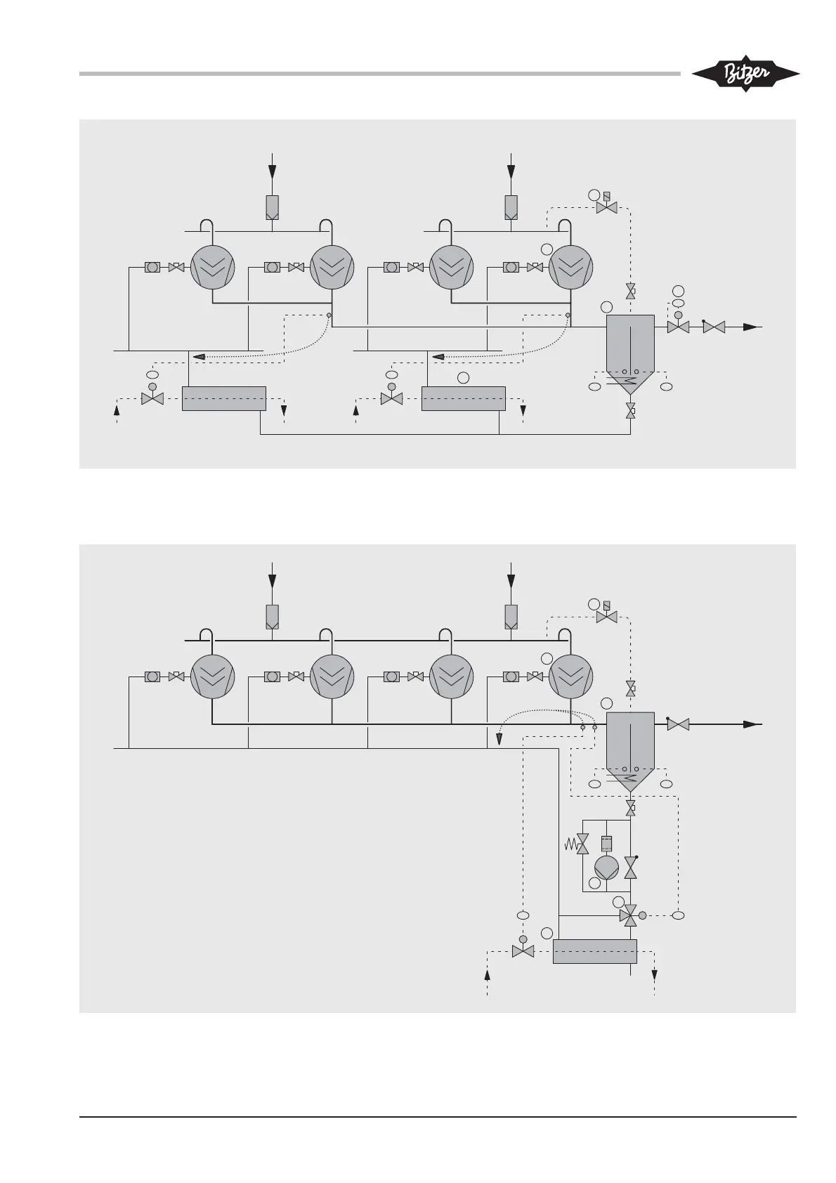
Abb. 17 Anwendungsbeispiel:
Parallelverbund für unterschied-
liche Kühlstellen-Temperaturen,
Legende Seite 44
Fig. 17 Application example:
Parallel compounding for different
cold space temperatures, legend
page 44
Fig. 17 Exemple d'application:
Fonctionnement en parallèle avec des
circuits à températures différentes,
légende page 44

Table of Contents

Related product manuals