EasyManua.ls Logo

Bitzer OSNA8571-K - Page 63

Bitzer OSNA8571-K
108 pages
Print Icon
To Next Page IconTo Next Page
To Next Page IconTo Next Page
To Previous Page IconTo Previous Page
To Previous Page IconTo Previous Page
Loading...
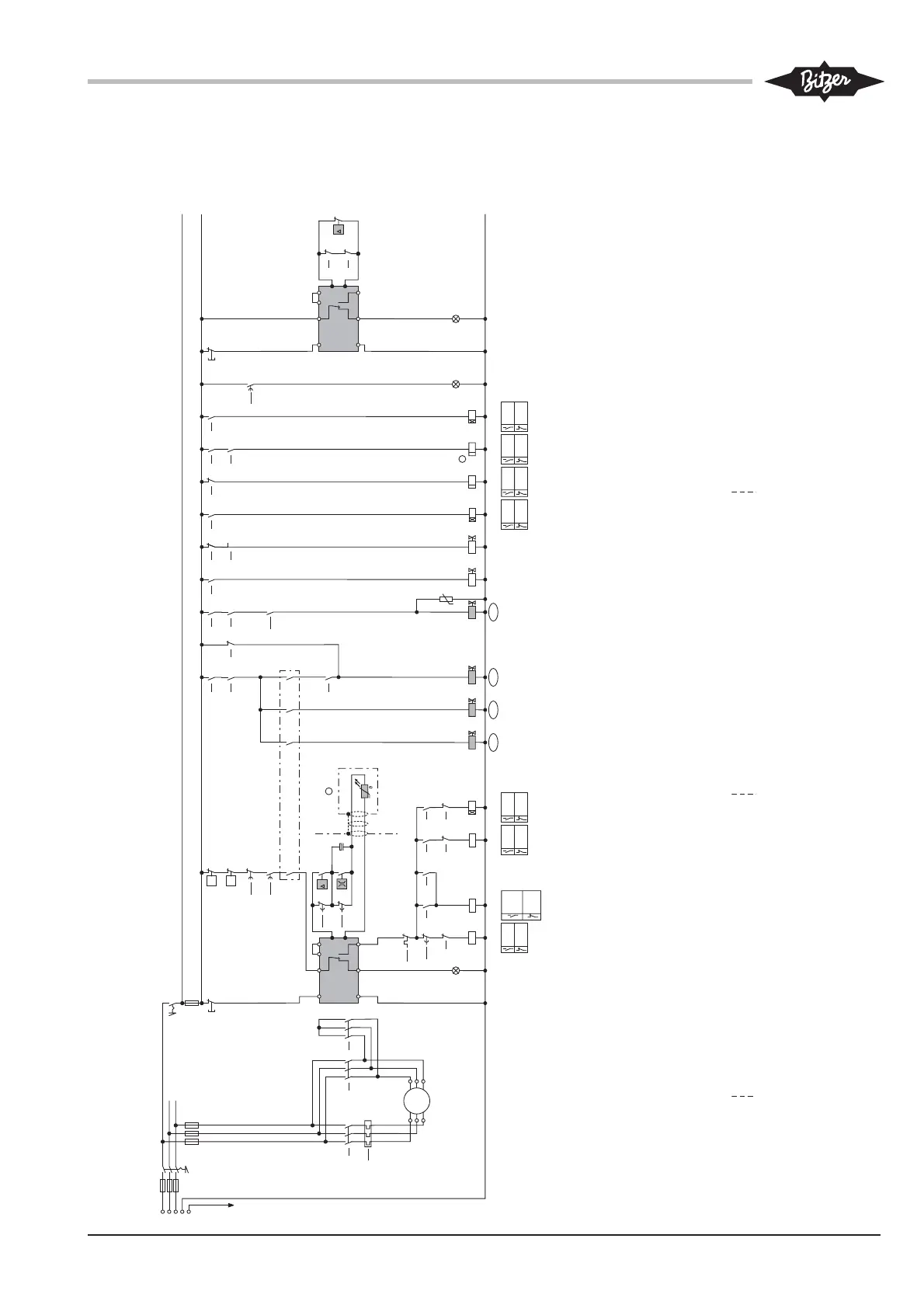
63SH-510-1
4-stufige Leistungsregelung
Standard-Ausführung
4-step capacity control
Standard version
Régulation de puissance à 4 etages
Version standard
Relais batteur ajustable 10 s / 10 s,
voir aussi chapitre 2.6 et 2.7
Armoire électrique
Les options sont signalées par des lignes
hachurées.
Fonctionnement ECO (option), contrôle de
niveau d’huile et des chauffage voir page 68.
Légende voir pages 60 et 61.
Adjustable time pulse relais 10 s / 10 s,
see also chapter 2.6 and 2.7
Switch board
Options are indicated by dashed lines.
ECO operation (option), oil level switch
and heater see page 68.
For legend refer to pages 60 and 61.
Einstellbares Zeittakt-Relais 10 s / 10 s,
siehe auch Kapitel 2.6 und 2.7
Schaltschrank
Optionen sind mit gestrichelten Linien
dargestellt.
ECO-Betrieb (Option), Ölniveau-Über-
wachung und Heizung siehe Seite 68.
Legende siehe Seiten 60 und 61.
K1
9
K1
9
N
4321 876
5
13
1211
109
14
15
16
17
18 19 20
21 22
23
24
25 26
29
27
30
2/2/2/10
11/12/16
18/19/21
23/24
20/22/29
9
K3
Y4
Y6
K3T
300 s
2 - 3 s
5 s
CR1 CR3
N
L
11
12 14
SE-B2
B1 B2
F7
K6T
24
F9
P
K1T
21
K4T
42
F6
P<
K2T
22
F5
P>
B2
S2
S1
01
F3 4AF2
L1
L2
L3
N
PE
F1
Q1
1
0
H3
K1
9
K3
11
8
5/5/5/9
11
K3
11
K3
11
K2
8
K3
11
K1
9
K1T
20 s
S4
18
9
H5
K1
9
K3
11
K1
9
K1
9
K3
11
K1
9
K1
9
K2T
22
K2T
Y2
K6T
Y3
L1.1
L1.2
F10
P
H2
N
L
11
12 14
SE-B2
B1 B2
CR4
Y5
CR2
U
K1
9
K3
11
K5T
23
Y7
K5T
10 s / 10 s
1
28
K1
9
K3
11
25
10
K1
9
K3
11
1
2
3
7
8
9
M3~
K1
F13
2
K1
9
K2
8
K3
11
K2
K3T
12
F13
8
K2
8
C1
+
R2
2
4/4/4/16
16/18/23
8/12/17
20/29

Table of Contents

Related product manuals