EasyManua.ls Logo

Bitzer OSNA8571-K - 4.7 4-Step Capacity Control (with SE-C2)

Bitzer OSNA8571-K
108 pages
Print Icon
To Next Page IconTo Next Page
To Next Page IconTo Next Page
To Previous Page IconTo Previous Page
To Previous Page IconTo Previous Page
Loading...
67SH-510-1
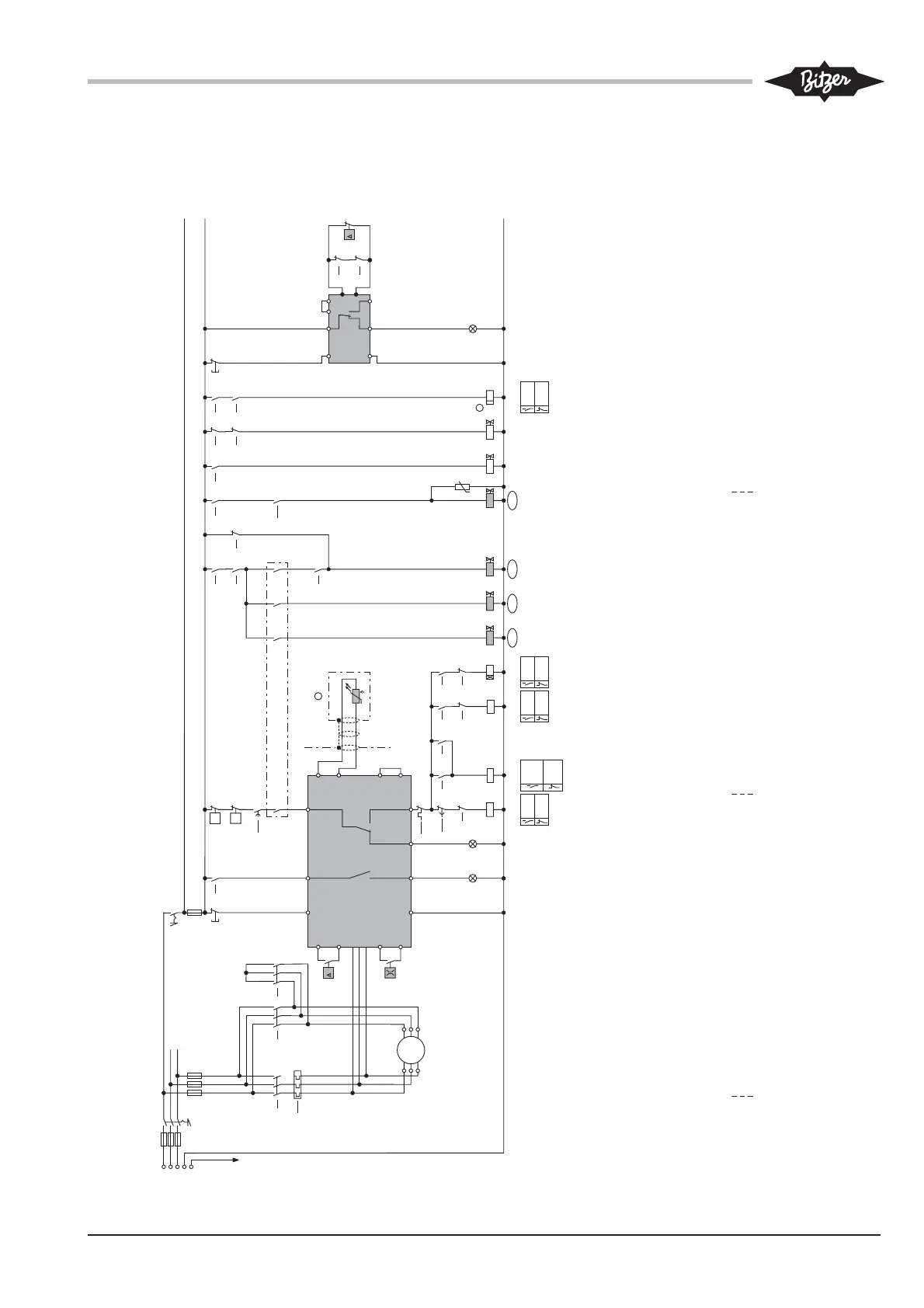
4-stufige Leistungsregelung
optionale Ausführung mit SE-C2
4-step capacity control
optionai version with SE-C2
Régulation de puissance à 4 etages
version optionale avec SE-C2
Relais batteur ajustable 10 s / 10 s,
voir aussi chapitre 2.6 et 2.7
Armoire électrique
Les options sont signalées par des lignes
hachurées.
Fonctionnement ECO (option), contrôle de
niveau d’huile et des chauffage voir page 68.
Légende voir pages 60 et 61.
Adjustable time pulse relais 10 s / 10 s,
see also chapter 2.6 and 2.7
Switch board
Options are indicated by dashed lines.
ECO operation (option), oil level switch
and heater see page 68.
For legend refer to pages 60 and 61.
Einstellbares Zeittakt-Relais 10 s / 10 s,
siehe auch Kapitel 2.6 und 2.7
Schaltschrank
Optionen sind mit gestrichelten Linien
dargestellt.
ECO-Betrieb (Option), Ölniveau-Über-
wachung und Heizung siehe Seite 68.
Legende siehe Seiten 60 und 61.
15
16
17
18 19 20
21 22
23
24
25 26
27
S4
19
H5
K1
11
K3
13
K1
11
K1
11
K3
13
Y2 Y3
L1.1
N
L1.2
F10
P
N
L
11
12 14
SE-B2
B1 B2
K5T
10 s / 10 s
1
K1
11
K3
13
Y6
CR1 CR3
K1
11
K3
13
K3
13
K3
13
CR4
Y5
CR2
K1
11
K5T
22
Y7
Y4
U
K1
11
K1
11
K2
10
K3
13
B2
4321 876
5
13
1211
109
14
2/2/2/8
12/13/14
17/19/20
22
21/26
K1
K3
K3T
2 - 3 s
K4T
42
F6
P<
F5
P>
S1
01
F3 4AF2
L1
L2
L3
N
PE
F1
Q1
1
0
H2
10
5/5/5/11
13
K2
K1
11
K3
13
1
2
3
7
8
9
M3~
S2
K1
11
F13
2
P
K1
11
K2
10
K3
13
K3T
14
F13
10
K2
10
R2
2
4/4/4/17
17/22
10/14/18
21/26
schwarz/black/noir
braun/brown/marron
blau/blue/bleu
F7
L2
L3
3
4
L
12 14
SE-C2
6
24
1121
1
2
5
7
8
N
L1
F9
H1

Table of Contents

Related product manuals