EasyManua.ls Logo

Blastrac BDC-66 - Page 49

Blastrac BDC-66
62 pages
Print Icon
To Next Page IconTo Next Page
To Next Page IconTo Next Page
To Previous Page IconTo Previous Page
To Previous Page IconTo Previous Page
Loading...
Page
BDC-66 DUAL VOLTAGE ULCSA
Ed.
4
PJ11.1068.22
HvdB +
Date
Date
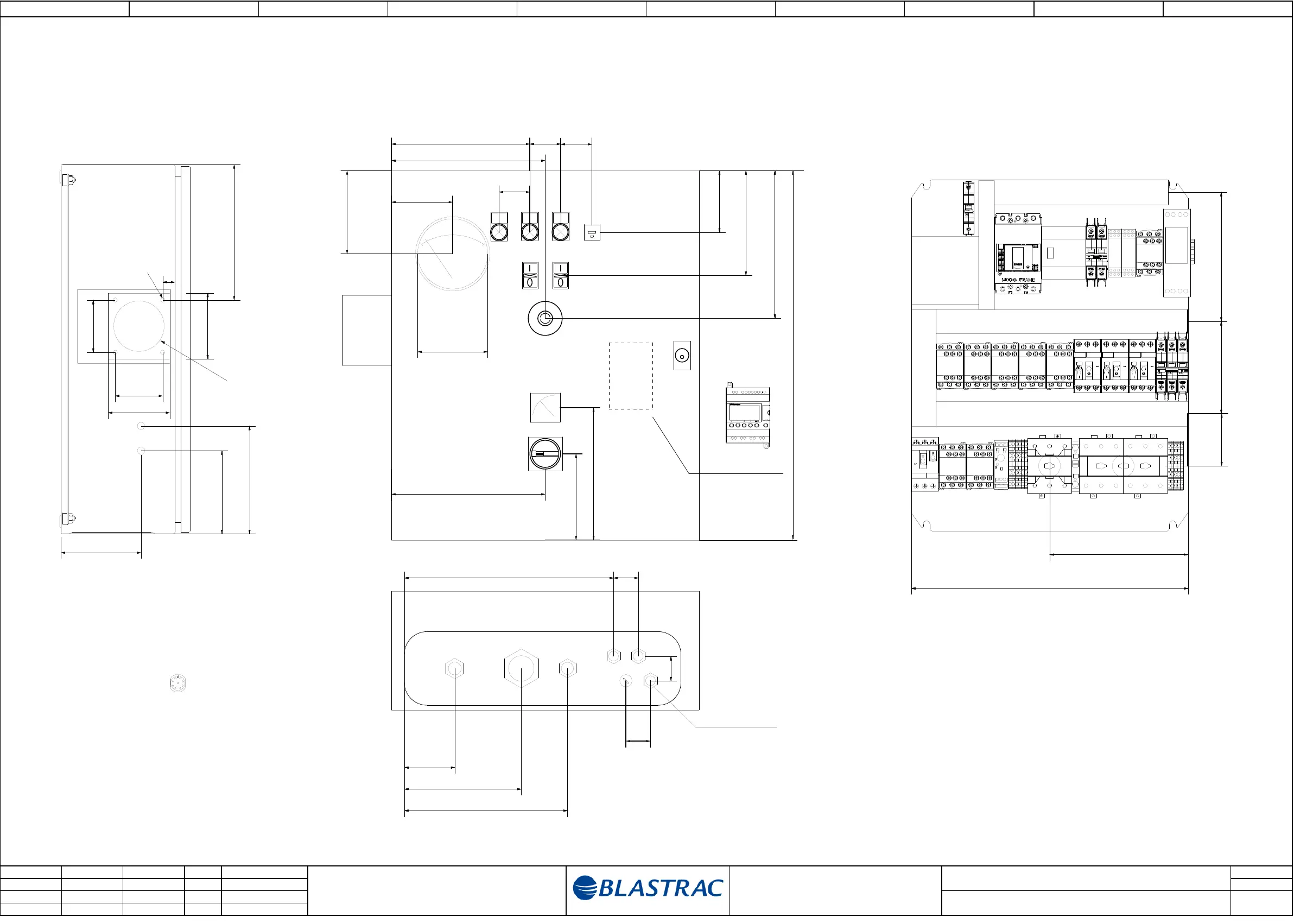
Panel Layout
1
Modification
0 76
Appr
8 93
8
4
16-9-2014
5
2
=
Name
5
Blastrac bv
Customer:
Drawing number:
Page description:Project name:
© ART4 Technical Systems, Soest NL
20-12-2016
Last print
E09226/230ULCSA
CABINET
FRONT VIEW
MOUNTING PLATE
CABINET DATA
ELDON
MAS 0605021
(HxBxD) 600x500x210
h000004
(*)
13P1
13H3
13S1
13SH1
13SH2
CABINET
BOTTOM VIEW
(*): With blindstop
M16 - Pulse system 3x0.75mm² length 3,0 mtr.
M20 - Compressor
M25 - Fan motor
M50 - Power supply
14U1
100
170
50
247.5
240
14U1
Zelio mounted in cabinet door
190
265
340 40
40
13H4
CABINET
LEFT HAND VIEW
Magnehelic
114,3
600
5P1
10X2
50
222,5
100
10V1
215
10X2
2xM12
85
77
100
107
ø 7
ø 88
135
175
20
219,5
130
10QM1
135
*
* Axle lenght 95mm
150 210
10Q2
10Q1
11Q1
11Q2
10S1
11F2
11F3
11V2
11T1
11K2
13KS113KD1
13KM1
13KM513KM413KM3
10F1
40x80
40x80
40x80
40x80
11K3
11K1
13KM6
63
25x80
450
225
10F2
10QM1
85
247,5 mm
118 mm
M16 for PE to Frame
13H5
50
11KT1
40
70
50
25
20
16 16
16
1616
11Q3
CAB

Other manuals for Blastrac BDC-66

Related product manuals