EasyManua.ls Logo

BONMET SDL10A - Chapter 3 Wiring; 3.1.1 Note

Default Icon
85 pages
Print Icon
To Next Page IconTo Next Page
To Next Page IconTo Next Page
To Previous Page IconTo Previous Page
To Previous Page IconTo Previous Page
Loading...
7
BONMET motion GmbH/www.bonmet.com/www.bonmet.de
conditions.
When using heat generating equipment such as the regenerative brake option, install them with full
consideration of heat generation so that the servo drive is not affected. Install the servo drive on a
perpendicular wall in the correct vertical direction.
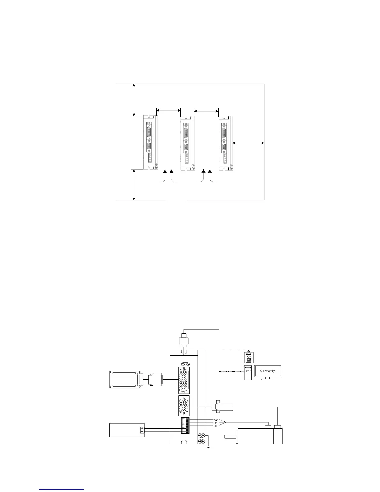
Figure 2-2 installation schematic diagram for drives
Chapter 3 Wiring
2.5 Connections
3.1.1 Note
All terminals and plugs must be screwed well, poor contact or disconnection could lead to accidents.
In order to prevent error movement caused by noise, please install isolation transformers and noise filter.
The equipment must be grounded.
Do not put power lines and signal lines in a same conduit or their binding them together, the distance between
power lines and signal lines should be 30cm at least, otherwise it may cause interference.
Please use the shielded twisted wire as signal cable.
Do not switch power supply frequently. The maximum frequency should be no more than once per minute.
2.6 Connection
Control
Card
Power
48~80VDC
Motor
Controler
25
mm
25
mm
100
mm
100
mm
Air flow
Air flow
100
mm