EasyManua.ls Logo

bora XBO - Page 18

bora XBO
48 pages
Print Icon
To Next Page IconTo Next Page
To Next Page IconTo Next Page
To Previous Page IconTo Previous Page
To Previous Page IconTo Previous Page
Loading...
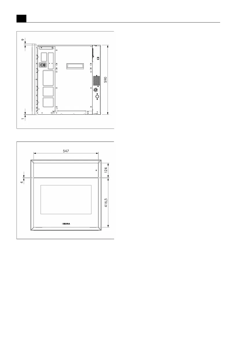
Technical data
EN
70 bora.com
Fig.3.3
XBO side view
Fig.3.4
XBO glass front view

Table of Contents