EasyManua.ls Logo

Bosch 830ES - Page 61

Bosch 830ES
107 pages
Print Icon
To Next Page IconTo Next Page
To Next Page IconTo Next Page
To Previous Page IconTo Previous Page
To Previous Page IconTo Previous Page
Loading...
Installation instructions | 19
6 720 644 887 (2013/02)C 1210 ES/ESC
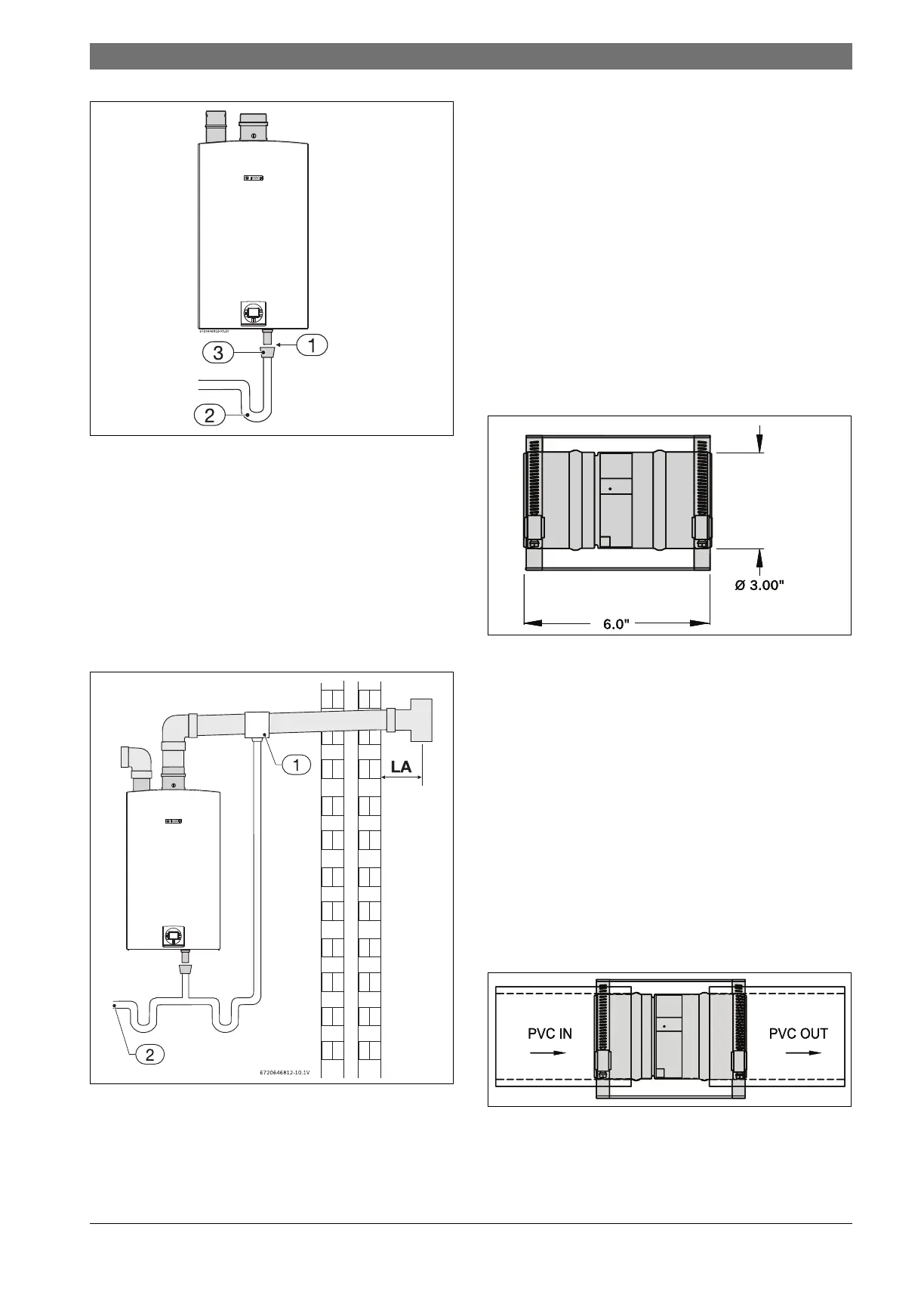
Fig. 18 Appliance drain installation
[1] Leave minimum ¼ " air gap
[2] Trap required
[3] 1 ½ " x ½ " PVC reducer
External condensate drain installation
If an external condensate drain (installer supplied) must be installed
(chapter 4.3.2), the following is recommended:
1. Install condensate drain on a horizontal section of the exhaust pipe
as close to the heater as possible.
2. The condensate must be disposed of according to local codes.
3. To install condensate drain in vent system, use PVC 3" X 3" X 1.5"
tee (part# 196278) and reduce for drain connection
Fig. 19 External condensate drain installation
[1] Condensate drain
[2] Dispose of condensate in accordance with local codes
[LA] Minimum 4"
4.3.6 Freeze prevention
In cold climates, components of a tankless water heater can freeze and
burst from negative draft. A leading cause of negative draft is
combustion appliances in the building not being supplied with sufficient
combustion air. A wood stove or furnace can pull its combustion air from
the water heater‘s vent pipe, allowing the cold incoming air to freeze the
cold water in the heat exchanger. Supplying more combustion air for all
combustion appliances is the solution. A HVAC specialist should be
consulted to design solutions for providing more combustion air.
Listed below is an additional measure designed to further limit backdraft
in extreme conditions assuming all other possible causes have been
addressed.
Backdraft reducer
The Heat Fab backdraft reducer (9301BFP) is the preferred option for
limiting backdraft (see fig. 20).
Note: The following solution is available only for 3" diameter
venting.
Fig. 20 Part nr 9301BFP
Installation
For this solution to be effective, the internal flapper must be 100%
closed when the water heater is not running. Refer to Figures 22 and23
for preferred installation positions in the vent system.
Installation considerations:
Install damper per the supplied manufacturer‘s instructions.
The damper is only to be used in the exhaust vent piping.
Ensure directional arrow on damper label faces in the same direction
as exhaust flow.
If installed horizontally, the axis must be horizontal or slightly pitched
up towards termination to ensure damper closes 100% when heater
is not running.
To allow accessibility, damper must not be installed in an enclosed
section of vent pipe.
Do not install damper in unconditioned spaces (e.g. attics)
Condensation can build up while the heater is running which can later
freeze and potentially block the flapper.
Fig. 21 Blackflow reducer (9301BFP) installed
6720608643-18.1V
6720608643-19.1V

Table of Contents

Other manuals for Bosch 830ES

Related product manuals