EasyManua.ls Logo

Bosch HBF133BR0 - Installation Below a Worktop; Installation in a Tall Unit; Corner Installation; Electrical Connection

Bosch HBF133BR0
32 pages
Print Icon
To Next Page IconTo Next Page
To Next Page IconTo Next Page
To Previous Page IconTo Previous Page
To Previous Page IconTo Previous Page
Loading...
en Installation instructions
30
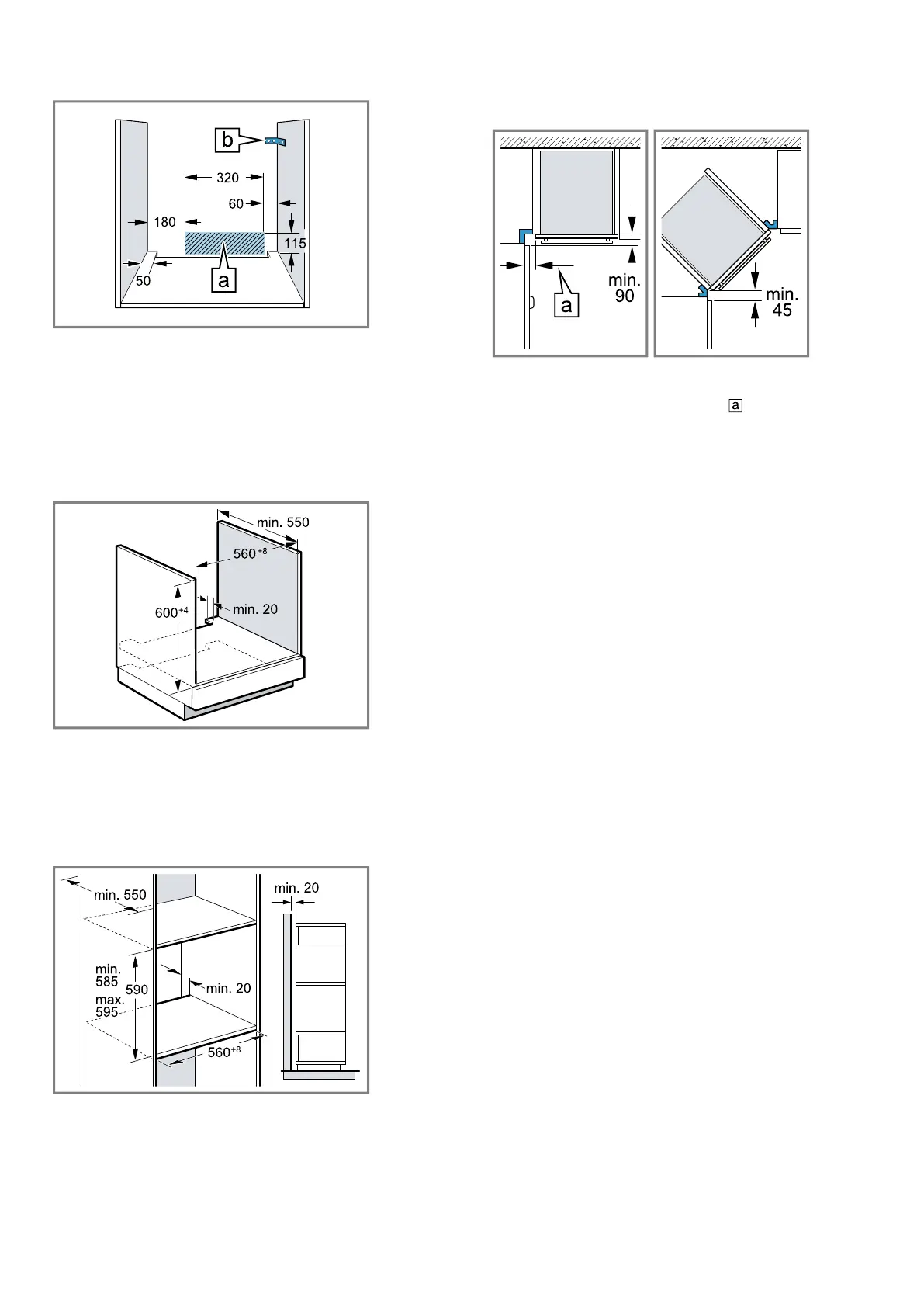
¡ The mains socket for the appliance must either be
located in the hatched areaA or outside of the area
where the appliance is installed.
¡ Secure freestanding units to the wall using a stand-
ard bracket B.
17.3 Installing the appliance below a
worktop
¡ To ventilate the appliance, the intermediate floor
must have a ventilation cut-out.
¡ Secure the worktop to the built-in unit.
¡ Observe the installation instructions for the hob.
17.4 Installation in a tall unit
¡ To ventilate the appliance, the intermediate floor
must have a ventilation cut-out.
¡ If the tall unit has another back panel in addition to
the element back panels, remove this.
¡ Only fit the appliance up to a height which allows
accessories to be easily removed.
17.5 Corner installation
¡ Observe the minimum dimensions in a corner in-
stallation in order to be able to open the cover of
the appliance. The dimension depends on the
thickness of the furniture panel and the handle.
17.6 Electrical connection
In order to safely connect the appliance to the elec-
trical system, follow these instructions.
¡ Before using the appliance for the first time, you
must ensure that your domestic power supply is
earthed and complies with the effective safety re-
quirements. The installation of the appliance must
be carried out by a qualified technician. Observe the
provisions of the local electricity supply company
and the general laws. In rare cases, a missing pro-
ductive conductor or incorrect installation may lead
to material damage or serious injuries, such as
death or injury caused by electric shock. The manu-
facturer accepts no responsibility for personal injur-
ies or damage to the appliance due to faulty or in-
correct electrical connection.
¡ The appliance must be disconnected from the
power supply whenever installation work is being
carried out.
¡ The appliance fulfils the requirements of protection
class I and must only be connected to an earthed
mains socket.
¡ The H05 V V-F 3G mains connection cable must be
at least 1.5 mm². The yellow-green conductor must
be connected first and be slightly longer than the
two other wires on the appliance side.
¡ In accordance with safety regulations, an all-pole
separator with at least a 3 mm contact opening
must be provided. A separator is not required dur-
ing connection, which is carried out via an earthed
power socket that is easily accessible at all times.
¡ Contact protection must be guaranteed during in-
stallation.
¡ Determine the phase conductor and neutral con-
ductor (zero conductor) in the socket. An incorrect
connection may damage the appliance.
¡ Connect the oven in accordance with the specifica-
tions on the rating plate.
¡ Place the appliance in front of the surround unit to
connect it. The connection cable must be long
enough. Caution: During the installation, ensure that
the power cord is not jammed and does not come
into contact with hot appliance parts.

Related product manuals