EasyManua.ls Logo

Bosch LM024 - Page 53

Bosch LM024
60 pages
Print Icon
To Next Page IconTo Next Page
To Next Page IconTo Next Page
To Previous Page IconTo Previous Page
To Previous Page IconTo Previous Page
Loading...
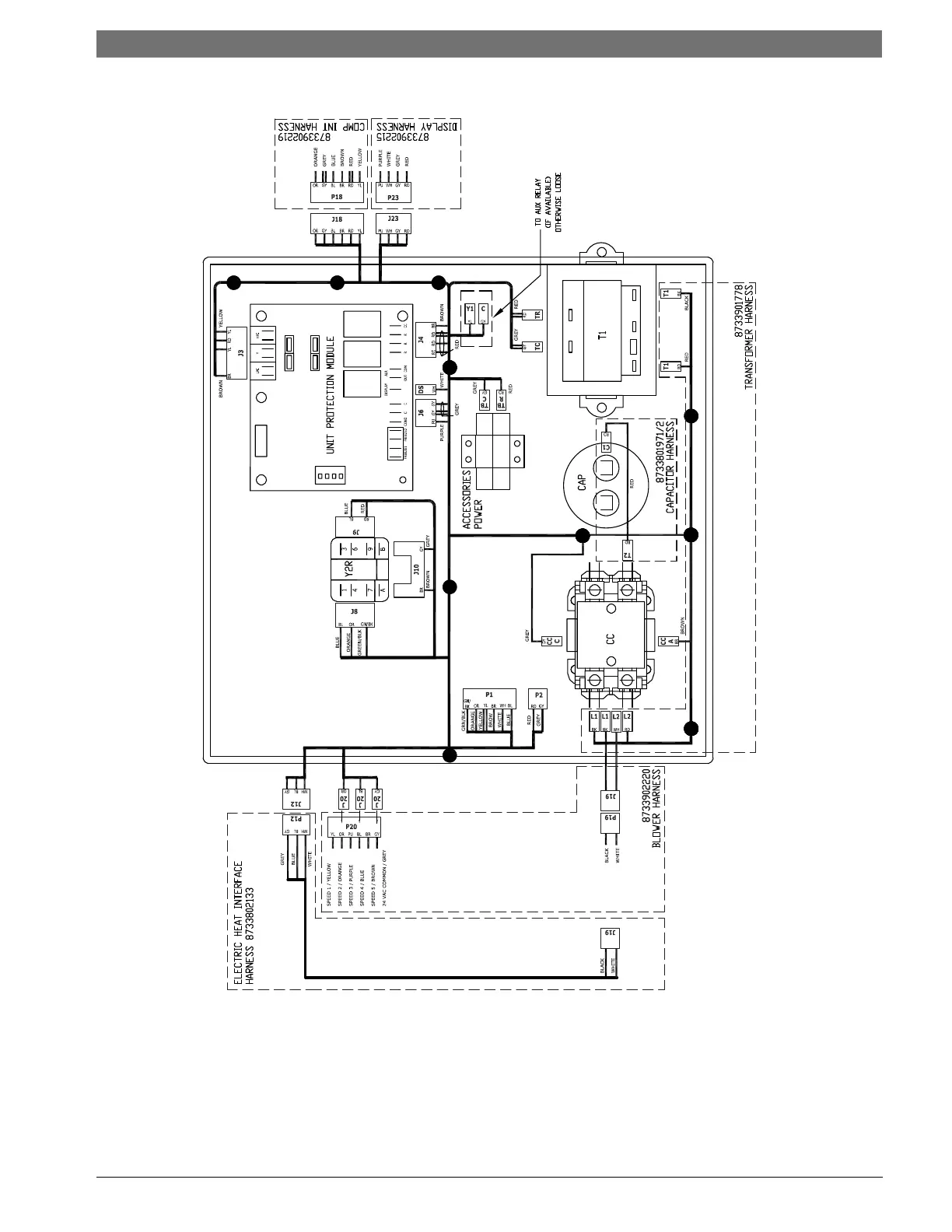
WIRING HARNESS DRAWINGS | 53LM Series Heat Pump
8 733 905 315 (2013/9)Revised 09-13
Figure # 37 Single Phase

Other manuals for Bosch LM024

Related product manuals